
A few steps from Piazza Signoria and the Uffizi Gallery, hidden amongst a plethora of courtyards of the historic center of Florence, the BRAC bookstore unveils itself as a space belonging to the Florentine society, both secretive as well as fascinating where one can read, eat, drink or simply pass the time in an embracing and hospitable environment. The project of its interior spaces is made with minimal yet accurate and immersive interventions which are the work of architects Javier Deferrari and Lavinia Modesti.
The architecture studio DEFERRARI+MODESTI, already the author of various interventions in which a call for an original experimentation in material and constructive solutions emerges, have designed and given an identity to the interior of the BRAC bookstore of Florence, characterized by ingenious ideas which are extremely simple and capable of creating a comforting and immersive atmosphere.
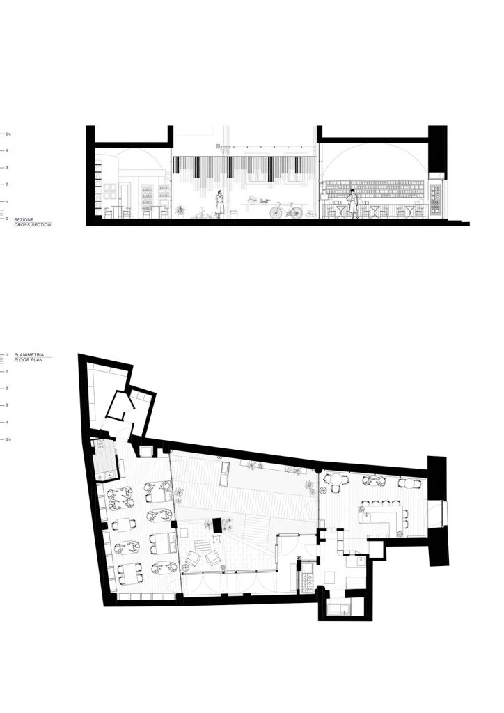
The BRAC bookstore can be found in Via de’ Vagellai number 18, a few steps away from the Uffizi Gallery. The multifunctional space of 75 square meters offers a reinterpretation of the idea of the classical café littéraire and is comprised of a contemporary art bookstore, a cafe and a kitchen where vegetarian and vegan dishes are prepared. The rich cultural programming offered in the last years has accompanied a variety of encounters and of relations. It is in this context that Javier Deferrari’s and Lavinia Modesti’s interventions are born. First, with a temporary installation (created alongside architects Valentina Muscedra and Sergio Leone), and with a tuning of a more integral solution to the acoustic problem and finally the restyling that brings the place to its current configuration. The capability of building relations is part of the success of the surprising space, which offers the Florentine public a lively interaction with the contemporary.
At the heart of the intervention by DEFERRARI+MODESTI is the 65 square meter courtyard which visibly links the two main rooms: a surprising space characterized by its verticality, color, flexibility, conceived with the objective of limiting the transmission of noise to the surrounding residences.
"More than 5,000 textile strips, of 9 different colors, 5 centimeters wide and between 75 to 175 centimeters long, hanging from above and involving the visitor in an emotional space."
The strips are suspended from a light and modular structure made from steel cables permanently fixed in the courtyard walls at a height that does not surpass the roofs’ at the interior of the bookstore. This allows a variety of configurations through time and through the different seasons, hence, allowing itself to adapt to transformations as well as the different needs of the cafe-bookstore.
Above this modular system, DEFERRARI+MODESTI added a layer that guarantees an adequate level of acoustic absorption during the night time, in the moments of more affluence of the locale. A system of curtains, made with a sound absorbing fabric which uses the same steel cables as guides and which, once opened by means of a precise pull system, proceeds to cover all the surface of the courtyard, thus limiting the transmission of sound energy towards the surrounding apartments. The granulated pavement made of gray Bardiglio marble welcomes a path marked by sandstone (pietra forte) slabs that recalls the texture of the bamboo flooring used in the interior.
"In the first room, wooden paneling surrounds part of the book collection and re-equilibrates the proportions of the space. In the second room, more informal sofa seat welcome book presentations, readings and photography exhibitions."
In the renewed form of the locale, the spaces, although not expansive, have been rendered even more functional and comfortable through some punctual solutions such as the transformation of the entrance which has gained a showcase space.
Furthermore, the existing bookshelves have been replaced so as to offer more visibility to the extensive book collection. Durmast wood is used for the new shelves as well as for the table tops -which rest on old iron bases of garden tables- and serves as a counterpoint to the monochromatic creme white of the walls. The old ceramic tile floor of the two rooms has been substituted with a bamboo parquet flooring which regulates the space.
Here’s how architects Lavina Modesti and Javier Deferrari, who have chosen to leave some signs of previous architects’ interventions (such as Arabella Bettazzi and Giorgio Ferone) still in site, describe the renewed BRAC bookstore, reopened to the public last summer after the last restyling.
"With our project we wanted to renew the atmosphere without distorting it and leaving the stratigraphy of previous interventions visible. The selection of the contemporary art books is very accurate and deserved, in our opinion, more visibility. The courtyard, the true heart of this place, is where we were able to express our creativity to the fullest."
The shop window, that constantly changes by presenting the latest book and photography acquisitions, is characterized by a series of interchangeable mobile elements which the owner Melisa, who has a true passion for books and is interested in all things contemporary in all of their expressive forms (such as art, theatre, dance, cinema and photography), can easily use and rearrange. In the kitchen, the co-owner Sacha, who is a creative chef specialized in vegetarian and vegan cuisine, gives free expression to his culinary inspirations.
comments