
Text provided by the architects
Since 2008, Portland Playhouse had been operating out of a historic, 1904-era church in the King neighborhood of Portland, making-do with sofa seating and make-shift solutions in a building long-in-need of updates. “In the early days of the Portland Playhouse, renovations were DIY,” notes the firm. Opportunity arose in 2012 when the city officially granted use of the structure as a theater.
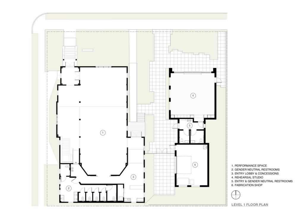
With a secure home in hand, the Playhouse undertook a plan to transform the outdated building into a fully dedicated theater. SERA partnered with the Playhouse on a multi-phased project that identified programmatic requirements, functional needs, aesthetic preferences, and growth strategies for the organization. The results of that planning included a substantial renovation of the former church building, the addition of a 1,500-square-foot dedicated rehearsal and community space, and concept design for an outdoor component to be added at a later date.

Phase one of the transformation began by overhauling the 6,500-square-foot historic structure’s systems, including electrical and HVAC. The rabbit-warren of spaces was opened up to make better connections to backstage areas while the public-facing lobby was refreshed with a new ticket office, concession area, and gender-neutral bathrooms, the first to be officially approved by the state of Oregon. The primary performance space is designed as a black box theater, enabling the artists to configure the stage and seating as desired (seating capacity is 90).

The existing baptismal was removed and a new wall with an entry/exit was added. The original wood floor was resurfaced and a new mechanical system was installed, providing heating and cooling. The back half of the building includes a studio for set construction. Daylight was introduced into the previously dark basement to house offices, dressing rooms, a green room, kitchen, and a communal gathering area. A mix of open, flex-space office nooks and a closed conference room topped with relites permits light to circulate throughout the basement.

Phase two consisted of the accessory structure, essentially a glass-fronted box, and adjoining courtyard. Clad in shou sugi ban-finished wood (charred larch), the building creates a yin-yang dialogue between the white-painted church while the bright interior volume serves as a welcoming environment for rehearsals and community meetings. The glass front opens wide to the adjacent courtyard to merge indoor and outdoor space and to symbolically reinforce connections to the community. Inside, light-toned wood and the minimalist design places emphasis on function, cost and energy savings, and occupant comfort. The new structure incorporates low-tech and passive solutions, including skylights, to bring in natural light and minimize utility costs. Landscaping for the entire site was redesigned and replaced.
“Our work for the Portland Playhouse is one of partnership over the long haul,” notes the firm. “The theater company is both deeply interwoven with its community and a recognized artistic destination, attracting top talent from across the nation. We are thrilled to have been able to help reimagine the Playhouse’s space to further their evolution. And due to the history of the original building, this series of projects brought a deeper-than-usual level of structural, regulatory, and neighborhood challenges, all of which the team took on without hesitation and resolved by considering a diversity of viewpoints and always creatively asking, ‘what else could we do?’”
Project Credits:
Architecture and Interior Design: SERA Architects
Landscape Architecture: Shapiro Didway
Structural Engineer: Kramer Gehlen & Associates, Inc.
Civil Engineer: Humber Design Group, Inc.
Contractor: Colas Construction





















comments