
RIGI DESIGN was commissioned by the client to design the first flagship restaurant of Xi Ding Dumpling, a high-end chain restaurant brand. In order to change the cheap fast-food impression of the existing brand, the design tasks are creating a distinctive space and improving the custom’s dining experience.
The comparatively wide entrance offers an ideal condition for front door design. RIGI uses concrete-like Stucco along with gray embossed GRC panels which based on 1:1 rattan patterns to create a fossil-like texture. As a metaphor, the design and materials of front door echo with the tradition and history of dumpling.
In the entrance area, compare with the modern gazing open kitchen and white marble counter, RIGI uses CNC-Cutting metal panel with traditional geometric patterns to reflect the essence “Fresh, Hand-made and Simplicity” of Xi Ding.

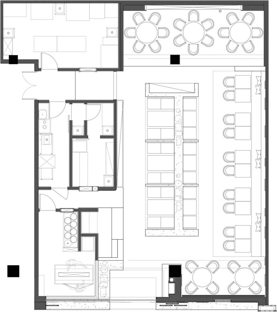
The dining zone is a flowing space that continues the simple, integral and grand style of the entrance. In the center is booths area. RIGI applies a ceiling grille which is made of CNC-Cutting MDF with traditional geometric pattern to define the space. With well-distributed lamps and smooth chamfered ceiling, creating an interesting and narrative atmosphere.

The traditional character logo, the dumpling and dinner set shape decoration on the display wall are unique design point in this project. Along with the rattan counter door panels and hand-made rattan baskets, to indicate a traditional home-made concept.

The concept “comfort” drives the overall layout of the restaurant. In order to meet the demands of small gatherings, the lighting design creates a private cozy spatial feeling by using accent lighting strategy. And in order to emphasize the star product of Xi Ding, "the seafood dumpling", RIGI plans a marine subject zone by using wave pattern and blue led wall wash lighting on the side background wall, which also increases the comprehensive spatial experience.
By using traditional rustic rattan elements, matching materials and modern techniques, RIGI creates a new definition of the traditional oriental spirit of Xi Ding, simple but delicate. This project is not only an innovation of the store style, but also an exploration and breakthrough for the total branding design.
Other Details:
Main Materials: Rattan, GRC Mold, Texture Coating, Metal Sculpture
Team: Kai Liu, Zi-Min Liu
Photographs: Zi-Min Liu
comments