
For Three Tavern’s second location, conceived as equal parts brewery and laboratory, the brand new Imaginarium explores the curious nature of craft brewing. Located in the historic Atlanta Dairies adaptive reuse development a mile from downtown, the volume of the selected space was perfect for the requisite large stainless steel brewing tanks.

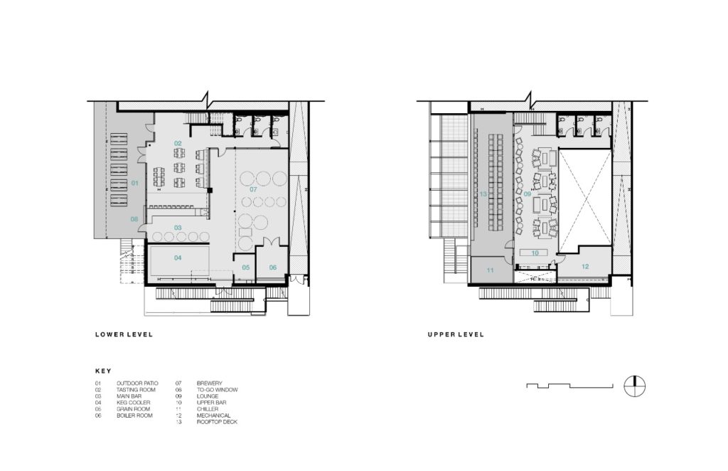
The biggest challenge was working with the small but very tall footprint and accommodating our client’s desire to have more seating than their first brewery. So the architects designed a mezzanine that allows the beer-making process to be viewed from different vantage points, each offering its own particular experience. Structure for the upper level was carefully coordinated in and around the brewery’s production area to maximize functionality and safety. Each seating area allows for different vignettes and moods, all with little moments of discovery. To complement Three Tavern’s well-loved interpretation of traditional Belgian-style beers, Square Feet Studio embraced a feeling of mystery and curiosity surrounding their intriguing new flavor profiles debuting at this location.

Upon entry via the covered patio on the lower level, a series of repurposed steel factory windows delineate the tasting room and draw the curtain back on the brewery production area like a performing arts stage. A reclaimed wood floor hand-painted in a checkerboard pattern with leather-wrapped countertops and barstools lend an old-world feel. They selected classic, luxurious materials throughout to feel as if they’ve always been there and to look even better over time. A saturated blue high gloss paint shimmers down a hallway and suddenly you feel as if you’ve boarded an old railway carriage. Other intriguing elements like dark plaster walls and acid-washed mirrors line the staircase and make way for the custom golden mural along the brewery’s back wall which artfully hints of the molecular science behind beer-making.

Continuing upstairs along a leather-wrapped handrail, the upper level is tucked beneath the structure of the old building creating a lounge dotted with intimate upholstered seating and glowing lighting overhead. Similar to a mezzanine in a theater, guests can appreciate the art of brewing from above as they peer down into the production area. A smaller scale bar anchors this area that we designed as a cabinet of curiosities, complete with apothecary accessories and small monk head figurines scattered throughout, a nod to the expert Trappist beermakers of Europe. Jib doors covered in high gloss paint in some areas and wallcovering in others, seamlessly hide necessary storage.

Traditionally appointed bathrooms feature custom wallpaper with a dark background to show off the brightly colored fruits and herbs used to make these flavorful beers. A bull’s head keeps watch over everything for mysterious reasons. Leading out from the upper level lounge, they transformed an existing rooftop into an occupiable deck with a series of custom concrete tables and a long drink rail along the parapet to provide guests an unobstructed view of the main plaza at Atlanta Dairies.

























comments