
The name, Halfway Crooks, is a nod to 90’s hip-hop artist Mobb Deep’s famous song, “Shook Ones,” and also pays homage to the crooks used by sheep herders. Our clients, owners Shawn Bainbridge, an electrical engineer by training who made a name for himself in the homebrewing scene, and Joran Van Ginderacther, a trained Brewmaster who grew up in Belgium on a sheep farm, came up with the intriguing, contrast-filled name.

Cozy, casual, and a little bit weird is how we imagined Halfway Crooks Beer feeling to guests. Like the pilsners and lagers the brewery specializes in, the space strives for comfort and light-hearted accessibility while at once maintaining an elevated sense of craft and nuance. The design draws heavily from the biographies and personalities of the brewer-owners. The grandmotherly patterns and mis-matched furniture reference the loved and lived-in Belgian café’s where Van Ginderachter spent many of his younger days. Happily woven into that fabric are hi-fi equipment and techie screens featuring Bainbridge’s glitchy computer coding and graphics by local branding company, Office of Brothers.

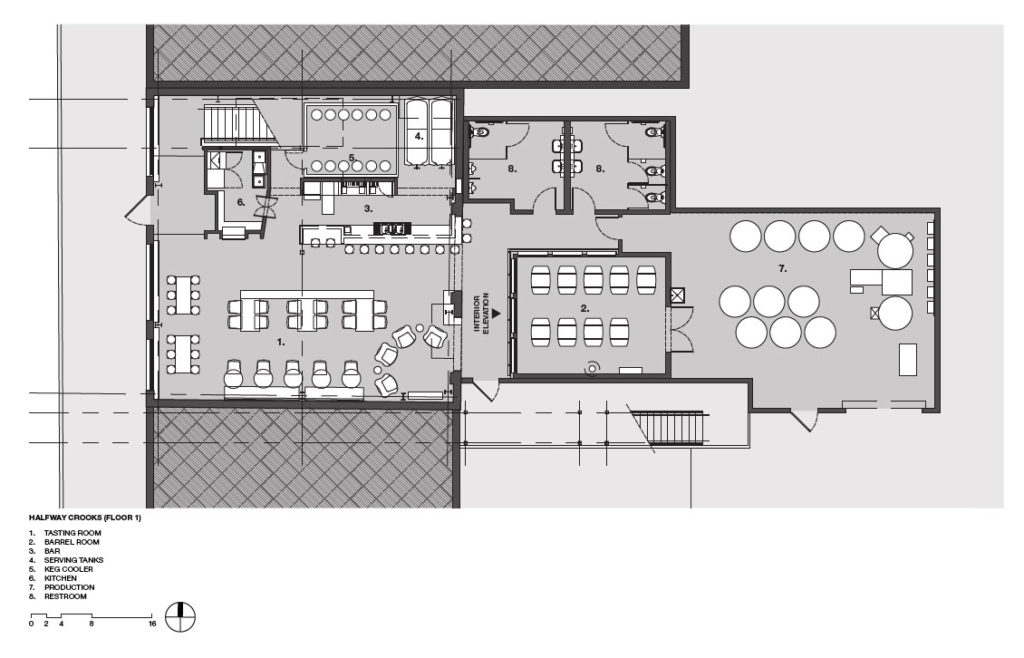
The color palette was pulled directly from the old interior plaster walls, left largely untouched for their lovely patina and hints to the building’s lingering memories which long precede the brewery. The climate and humidity-controlled barrel room is wrapped in traditional molding pieces stacked unconventionally to create an undulating baroque-like mass, with glazed voids providing views to the aging beer.

Finishes range from handmade Mexican tile to antique Belgian wallpaper and classic marble counters and baseboards. Handcrafted stile and rail paneling unifies the bar, kitchen and cold storage into a single gesture of casework. The high/low aesthetic reaches a crescendo in the lighting design, as beadboard clouds of varying sizes pinwheel across the ceiling carrying porcelain keyless lamp holders with exposed frosted bulbs that illuminate the tasting room in a moody but ambient glow. Directional lighting and red Christmas lights combine in the barrel room to produce a dramatic theater-like set, emphasizing the display of the barrels. Linear T8 lamps with bulbs wrapped in amber gels stagger in the hallway in an homage to the minimalism of artist Dan Flavin.
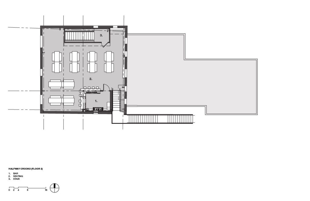
Finally, the brewery also features an upstairs patio housing a second bar clad in charred Shi Sugi Ban siding and a new retractable roof system that can be opened and closed according to the season and the weather. The louvered roof system serves as a brise-soleil to cool the space by tempering the sunlight while strong shadows play along the old brick walls.
comments