
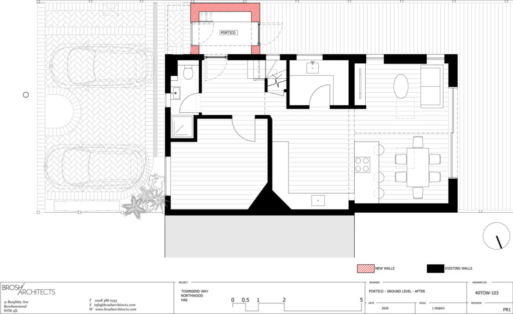
The existing property was built in the mid 1950’s with a side door entrance which gave the house an uninviting and faceless front façade.
The brief was to design a portico Extension for the existing home to add more storage space for shoes, coats and above all, create a warm welcoming entrance to their home however, the rear garden access from the front was to be kept.

The budget was limited and therefore the design had to be as a simple as possible with no structural complexity. The plan started with a simple rectangular shape and we developed the design from that point.
Firstly, it was ensured that there was an access to the rear with good circulation of movement in and out of the house. Then the architects added the storage bench, coat area and in order to maximise the natural light, they positioned a large ceiling skylight and installed a single glass panel rear access door.

The large skylight almost covers the entire ceiling area which gave limited space for the downlights. To overcome this issue; they created a detail to conceal the lighting within a small recess in the skylight’s upstand to hide the strip lighting. The strip lighting was installed with a light diffuser to stop the skylight reflection from showing the LED lighting dots and instead evenly reflecting the light back into the portico area.
In order to cut both short and long term costs Brosh Architects decided on using only 2 materials - Brick to match existing and birch plywood to balance the strength of the internal brick and also to create a warm welcoming into the space.
Bricks was selected for the floor material because it works as a warm and welcoming material internally - yet can withstand the wear and tear of hard materials coming from the front to the rear such as gardening maintained machines, wheelie bins and any other house maintenance requirements.

The internal bricks were coated with a matt internal sealant to prevent any brick dust and now the walls are maintenance free, unlike if they had used standard plasterboard and skim for a wall finish that would mark and crack over the years to come.
The birch ply joinery was simply designed to create a seated area to put shoes on and off and within the bench we made storage for the shoes. The side panel was made to not only hold the rods for the coats but also to hide the coats as you come in to the house or from the house into the portico.
comments