
Text provided by the architects
Complete renovation and rear extension for a tired 2 bedroom Maisonette located on lower ground and ground level in a 3 storey terraced Victorian property, within the Hampstead Conservation Area.
We believe that every period house has its own story to tell, even if it has been stripped out of its original features and layout; therefore we believe that it is our duty to retell its story. Our Gardnor Road project is a great example of this belief. Our vision was to restore the old Victorian Hampstead charm and adapt it to modern living.

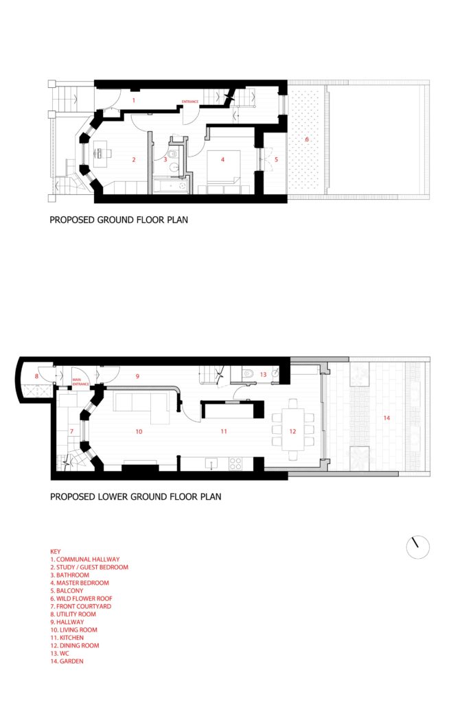
In the 1970’s, the house was divided into 3 flats, the original staircase was removed and a kitchen was installed in its space. We reverted back to the original layout creating a functional space between living room, kitchen and dining room. The staircase was designed to its original form and location, with new hidden storage space and a WC. We installed distressed timber boards with an ‘old English’ stain and used a dado rail, cornicing and found a fireplace to match the late-Victorian period.
We were able to salvage, clean-up and re-use the existing Victorian London bricks for the new extension and for the internal brick wall cladding detail, this showcases the original beauty of the bricks. We kept the original Victorian shoot-out extension at the rear of the house and made a feature out of it, incorporating it into the extension.

The dining and living room are linked with the kitchen, its’ white glossy finish reflects natural light in from the rear garden.
The dining room is framed with full width heated sliding doors (reducing heat loss whilst acting as a primary form of heating). The garden feels part of the interior, creating the illusion of a bigger space. Sprayfoam insulation in the walls and ceiling of the new extension ensures a tighter seal and reduced energy costs. Radiators were replaced with hydronic underfloor heating and a NEST thermostat system.
Upstairs, we created a master-bedroom and guest bedroom / study with a bathroom in-between them creating a wider landing space.
At mid-stair level, the sash window is the original 150 year old timber sash window relocated from the master bedroom.
The master bedroom enjoys a balcony view onto a wildflower roof (reducing impact on neighbours, reducing heat loss and surface rainfall run-off and improving sound insulation). The guest bedroom / study faces onto the Victorian terraced beauty of Gardnor Road.

In the front courtyard, we removed the 1970’s street railing and went back to the original style and restored the Victorian part of the handrail back to its formal glory. The ‘crazy paving’ was replaced with 150 year old York stone to complement the street paving of Gardnor Road.
The non-original entrance door was replaced with a Victorian-style door adorned with period door furnishings. We fitted a solid brass Victorian lamp to give a Period-look that matched the street lighting. The UPVC windows were replaced with sash windows with a special distorted glass finish to look old and give back some of the original charm.



















comments