
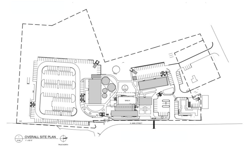
Once dotted with dilapidated metal sheds, silos, and a cotton gin dating to 1914, historic Buda Mill & Grain Co. in the Texas Hill Country is finding new life as a multifaceted, community-focused destination. Firmly entrenched in Buda’s history for over 100 years, the redeveloped site now offers more than 27,000 square feet of retail, restaurants, and community-oriented spaces that bring locals and visitors together within a vibrant setting. The complex is composed of five structures—a mix of old and new—including a renovated 105-year-old cotton gin building, a large, renovated steel equipment shed, a historic elevated grain augur, four vintage silos, and three new buildings. The challenge was how to preserve the bones of what was there while making the existing structures and new facilities a cohesive complex.

The largest of the buildings—a 6,000-square-foot, steel-framed equipment barn nicknamed Big’un—measures roughly 120 feet long by 60 feet wide. Taking advantage of the simple, modular elegance of its structural system, the walls of the first bay were removed to create a Texas-sized covered porch that faces Main Street.

A glass wall delicately defines the back of the first bay to fully enclose the remainder of the building, which is slated for a future retail space, restaurant, and brewery. The thinly detailed glass wall was made possible through the use of insulated steel mullions. Supporting the mullions behind the glass wall, surplus steel columns removed during Big’un’s renovation were repurposed to provide structural support. The original metal roof, historic silos, and overhead augur were integrated into the final design as a nod to the site’s former use. The auger became the perfect armature for the Buda Mill & Grain Co. sign.

The historic, 3,000-square-foot, brick cotton gin building was kept largely intact with work limited to stabilizing the structure and adding a modest addition to the rear of the structure. Exposed steel and concrete additions complement the existing brick while making clear the distinction between what’s historic and what’s modern.

Outdoor areas surrounding the structure were enhanced with simple solutions to block the hot, Texas sun while preserving views of the historic building to create an inviting space for patrons to meet and linger. Bricks removed during the renovation were salvaged and repurposed. Board-formed concrete site walls provide space for signage. Concrete pathways guide visitors through the complex. Together, the renovations and new structures create a popular venue for the community.























Credits:
Cushing Terrell design team
Sheri Blattel, Project Manager/Principal in Charge
Alex Bingham, Architecture Project Lead and Designer
Brad Thigpen, Architect
Jousha McCalip, Electrical Engineer
Buckley Parks, Electrical Engineer
Project consultant team
Cushing Terrell (architecture, mechanical engineering, electrical engineering, fire protection, signage design)
Buda Mill & Grain Co. (contractor)
Southwest Engineers, Inc. (civil engineer)
Hollingsworth Pack (structural engineer)
Sign Crafters, Inc. (signage fabricators)
Products/Materials
Steel doors & windows: Presidio Steel Doors & Windows
Standing seam metal roof: Berridge
Sheathing: Huber- Zip System
Glazing: Guardian SunGuard SNX 51/23 insulated glass
Garage door: Overhead Door (model 625 Stormtite insulated heavy-duty)
comments