
Text description provided by the architects
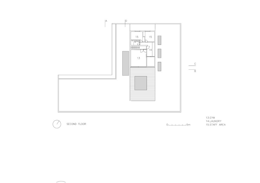
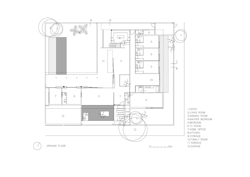
The Alto de Pinheiros house program spreads along the ground level taking good advantage of its site. With an L-shaped plan, covered by a large marquee, it encompasses 3 courtyards ensuring the presence of nature in all major spaces of the house. In the second floor, are located the service rooms and the gym.

Supported by slim metal pillars, a veranda was created along the L-plan’s whole inner edge. It connects directly to all living and dining spaces when the sliding doors are open, allowing them full view and direct access to the main garden courtyard. The veranda’s wide roof overhang helps shade and avoids overheating of the glass facades.
In order to improve light distribution, several skylights were created throughout the house guaranteeing natural light to reach the interior. Perforated walls also allow the entry of natural light while preserving privacy in the rooms.

When in the living room, it is possible to contemplate the sky and the adjacent water courtyard. An inner garden separates the dinning, living and intimate spaces.
The sleeping spaces and family room open up to a more private courtyard that serves as a playground and an intimate outdoor space.
comments