
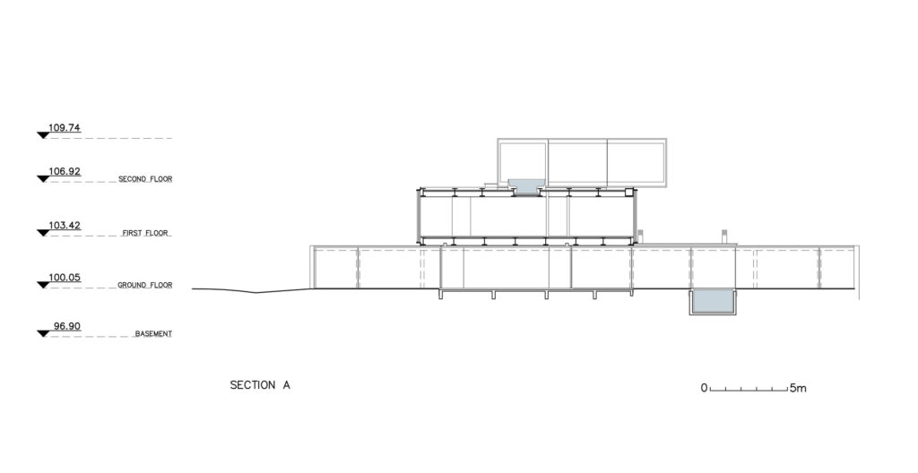
Located in a green residential area in São Paulo, Brazil. The house program was organized in three blocks based on functions (service, sleeping and leisure spaces) piled up and arranged in a way that creates a constant indoor-outdoor integration.
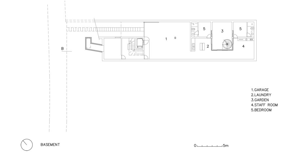
While the wall-less social area allows it full view and direct access to the garden, translucent sliding doors separate the service block from the living and pool spaces. When slid open, the service rooms (pantry, kitchen and barbecue area) are extended into the social area and garden creating one continuous expansive space.

The sleeping and more intimate spaces are located in the upper block. They are covered by hinged and sliding pine wood panels that open up enabling the contemplation of the garden and green-roofed service block.
The top block and third floor of the house consists of a leisure space. It includes a gym opening onto a terrace where one may enjoy the sunlight while overlooking the surrounding green neighborhood.
At night, the translucent feature of the panels produces the reverse effect, allowing internal light to leak out to the garden.
Credits:
Author: Pablo Alvarenga, Manoel Maia, Adriana Zampieri
Team: Gabriel Rocchetti, Paula Saito, Paula Ferreira Leite
[…] home was built using prefabricated mass timber CLT panels on a site in Vancouver. The siting of the home locates the glazed sliding doors and a balcony on the lane side while keeping privacy toward the […]