
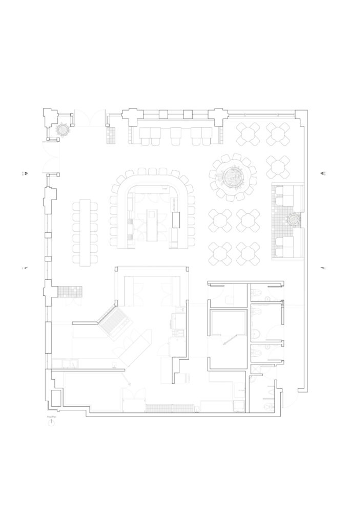
Situated in the light industrial area of Vancouver's Mount Pleasant neighbourhood, the restaurant and bar occupies 2,800 square feet in the recently refurbished art deco Lightworks Building, originally designed by architect H.H. Simmonds in 1942 as a manufacturing facility for war-time electrical parts.

The intention of the project was to reference the existing spatial condition—that of the heritage industrial building—and contrast it with the non-traditional ethos that characterizes the client and their food. The industrial quality of the space is emphasized through the use of minimal and unfinished materials such as concrete, steel, plaster, and wood paired with a muted colour palette of greys, greens and black. These rough materials and minimal colours are contrasted throughout the space by the use of a formal flower motif.

The simplified form of a flower was adopted from folk art and Eastern religious art by the countercultural movements of the 1960’s and 70’s as a sign of peace or “flower power,” making it emblematic of an influential time in the development of West Coast culture. For the project, this motif has been utilized to create the large curved bar, flower-shaped planter, interlocking high top tables and curved pony-walls, and provides the imagery and patterns used in finishing details.

While there is always a tension between experimenting with form and providing the functionality and durability that is required in a restaurant, much like in the history of folk art the approach here was to integrate the ornamental and utilitarian.























comments