
Text provided by the architects
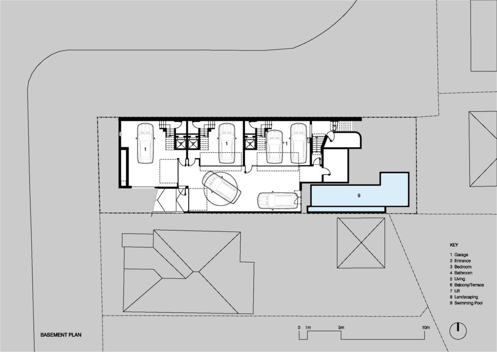
Three luxury townhouses on Tamarama's waterfront have been designed to cut into the slope of the site’s natural landform allowing the building to open generously to the view as it simultaneously bunkers down to the landform.

The townhouses utilise and maximise the extensive views to the coast with each townhouse incorporating cross ventilation, excellent solar access and a high level of finishes.
Unapologetically robust, the raw off form concrete and unfinished materials are designed to weather and age in the coastal position. The strength and durability of the cladding is tempered by the fineness of the detailing with warm tactile interiors.

Robust cladding and sandstone walls provide a sense of security and operable, large timber screens allow the house to fully open up to the water / landscaping or be quickly and efficiently sealed providing privacy and security.

The builder and our practice worked closely with the structural engineer/glazier/steel fabricator, and joiner to maximise the output of the materials and design opportunities at hand. Together we designed all components and often fine-tuned these designs on site as the building progressed. The conjunction of creative discipline and high quality craftsmanship has yielded the best results for the townhouses.
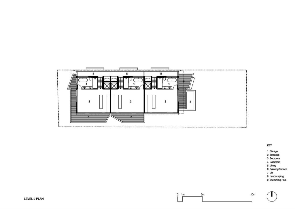
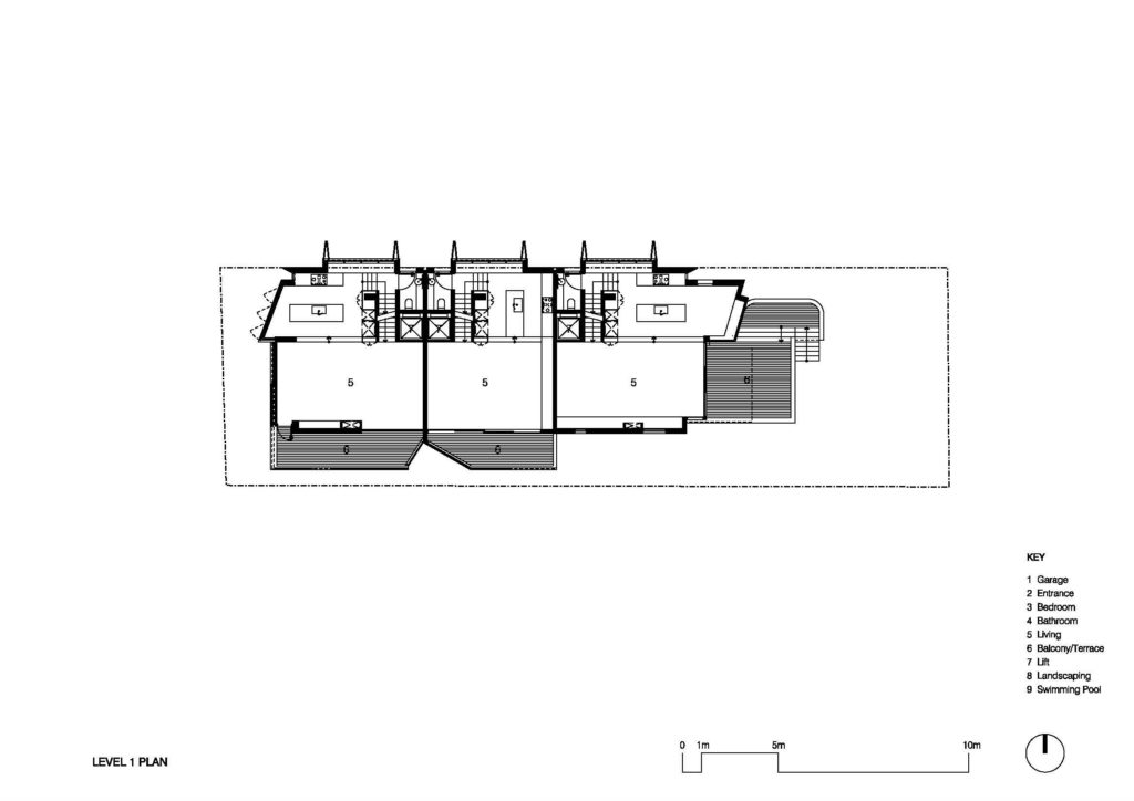
The townhouses are draped in natural light when desired, or cool and contained depending on the screening of doors and windows - many are operable for this reason. Designed over 3 levels, the spaces are malleable to the inhabitants needs and there is always a place to go for solitude or company. Designed to age beautifully – the material palette was carefully considered in order to age visually at the hand of the elements whilst tirelessly upholding structural integrity.

The inhabitants are a busy, social couple who wanted to take full advantage of the panoramic views, required generous living spaces, yet also space to incorporate visiting family and friends. The design needed to have connectivity to the pool and landscaping either by direct access or sweeping views.
The house sits within an array of homes of different periods and styles with harbour views to the front. It was imperative to design a beautiful apartment, yet not allow it to dominate or detract from the prominent site on which it sits. The challenge was to create a safe, enclosed space without building an impenetrable fortress given it is highly visible on its corner, elevated site.






















comments