
Text provided by the architects
This family house was designed to maximise garden connections and northern sun on an east/west orientated site in the Melbourne bayside suburb of Hampton.

The house presents as a simple composition of three forms to the street. The garage is clad in weathered recycled hardwood to conceal the garage doors and contrast with the vertically grooved cladding delivered by Habitech’s wall panels for the rest of the house. Its curved wall leads to a front door in the void between garage and front bedroom forms.

Above these forms, the asymmetrical gable roof to the upper level creates a large north facing roof area for 6.5kW of battery ready solar panels to be mounted without the need for unsightly steel frames. The first floor overhangs the ground floor to provide effective northern summer shading and cover to the front door.
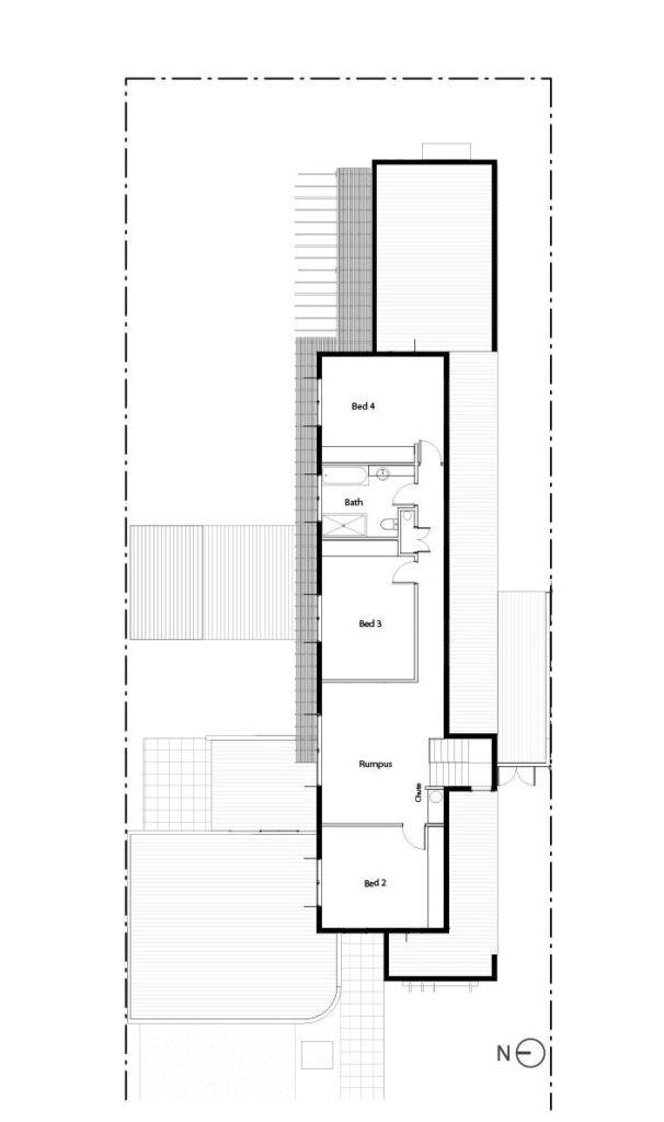
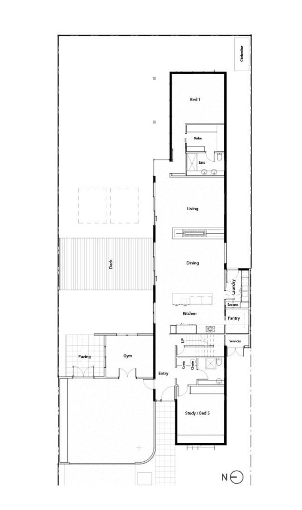
The house is planned to potentially accommodate three different generations. In the centre of the house are the main living rooms which are oriented to the north to maximise passive solar performance and open the house to the garden. Branching off this are three separate bedroom zones. The parents retreat is at the rear, at the front is a spare room with fold down bed for the owner’s parents to stay, while the upper level is the domain of the children with their bedrooms, bathroom and a separate sitting room.

This is an all-electric house with intelligent technology used to minimise energy consumption. Systems include heat recovery ventilation, heat pump based hot water and hydronic heating. The house achieved a NatHERS rating of 7.6 Stars.
The house won Best Ecologically Sustainable Design at the City of Bayside’s 2018 Built Environment Awards.
























comments