
Text description provided by the architects
This project, a Victorian terraced house in Islington, a borough in Inner London , comprises of a side and roof extension, as well as extensive internal refurbishment. Featuring open-plan kitchen, dining and living areas on the ground and lower-ground floors, Elfort Road House has been transformed from dark and cluttered into light and spacious.
Our clients, a young family of three, required a larger property with extensive space. The brief was to create a light, airy, family-friendly environment: an abode featuring sophisticated simplicity, clever uses of space, an open-plan feel for entertaining, contemporary touches, yet with a respect for the original period style and featuring high-quality, timeless design.
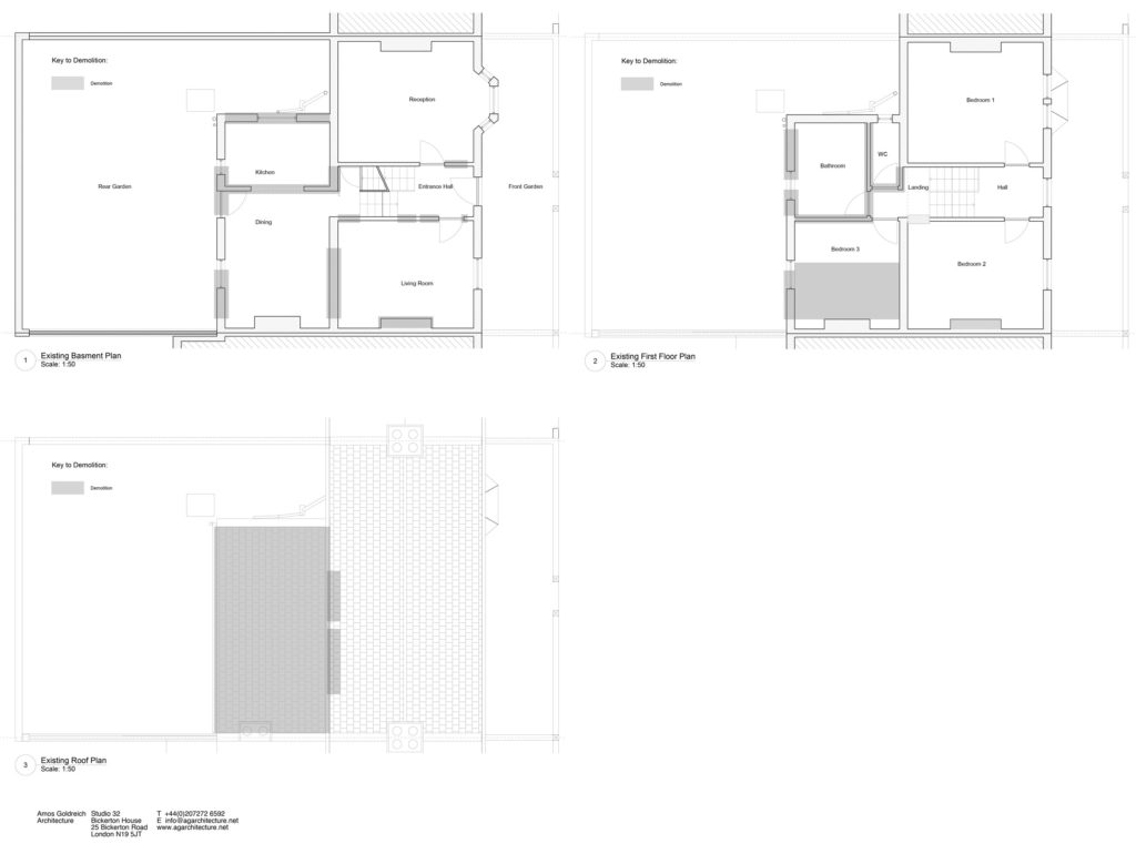
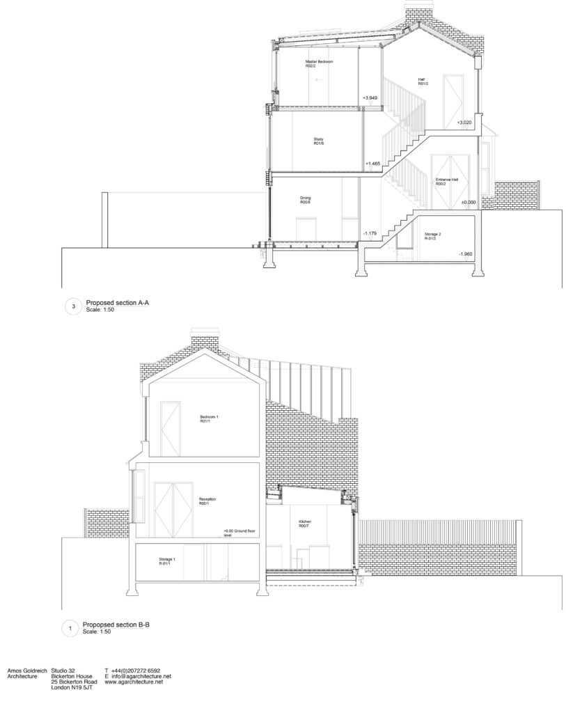
The spaces for eating, living and working are arranged over an open series of half-levels, exploiting volume and light. Removing the third bedroom at the first half-landing resulted in a study half the depth and a spacious double-height living room. This creates a visual connection between the dining room, kitchen, front living room and study.
Energy efficient features, including LED lighting and new plumbing with underfloor heating in the kitchen and dining area, also add aesthetic uniformity and reduce clutter. All windows were replaced with double-glazed, timber windows.
The Clients: “The result has been spectacular: A home we look forward to returning to every day that perfectly complements the needs of our growing family. Every time we open the front door we will be reminded of the care and attention to detail Amos Goldreich Architecture meticulously designed into every corner of our home.”

How is the project unique?
Sometimes, houses such as Elfort Road can be overlooked because of their relative normality and small scale. However, these sorts of properties offer the chance for us to be even more creative because we have a limited space and budget to work with. First and foremost, we wanted to create a sense of comfort for the family, from bright, open areas, carefully arranged to maximise space, to refined materials and finishes which bring everything together. Of utmost importance, however, is that they love their new home, and we hope it continues to bring enjoyment for many years to come.
What building methods were used?
The selection of materials was kept to a minimum so that the house would feel 'streamlined' and not too busy. This restriction was echoed in the choice of colour palette to enhance the space in terms of size and fluidity. Oak flooring was laid throughout, except in the bathroom and WC where we used patterned, porcelain tiles.
Plywood is used for all the bespoke joinery, which we also designed, as it is a common material which can be used in different and extraordinary ways. It is relatively cheap, stable, flexible and very strong. We exposed the edges of the ply to add warmth to the design, while covering the faces with a scratch and heat-resistant, anti-bacterial nanotech material called Fenix NTM.
Zinc cladding is used on the side and roof extension as it blends well with the surrounding context, and for its physical properties. We chose a colour similar in tone to the neighbouring tiled roofs to ensure that the new extension sits comfortably next to them.

What was the brief?
The clients required a larger property with space to grow. The brief was to create a light, airy, family-friendly environment: an abode featuring sophisticated simplicity, clever uses of space, an open-plan feel for entertaining, contemporary touches, yet with a respect for the original period style and featuring high-quality, timeless design.
What were the solutions?
The spaces for eating, living and working are arranged over an open series of half-levels, exploiting volume and light. Removing the third bedroom at the first half-landing resulted in a study half the depth, and a spacious double-height living room. This creates a visual connection between the dining room, kitchen, front living room and study.


































comments