
Located in Pavilnys Regional Park in Vilnius this humble and practical house offers a sense of richness beyond materiality. While designing this house the main aim for DO ARCHITECTS was to benefit from the exceptional surroundings of Regional Park and rail line that borders the site. Simple rectangle shaped house, oriented towards park and rail line, was designed so inhabitants are always surrounded by an unforgetable scenery. Trains passing by, deers coming to your garden to eat apples becomes part of the house life.

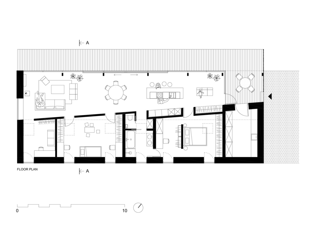
The building is split into two functional halves. On one side, an open common living space containing the kitchen, dining and living areas spans the entire length of the house. This space facilitates everyday family life in a vibrant and shared environment. After entering the house one finds itself at this common space. There are no separate rooms for reading, eating, or working, only a dynamic and ever-changing space that embraces everything. White walls of the house become a canvas for family’s life and a well - chosen objects.
A wall of glazing connects the common space to the garden and terrace, where the natural surroundings of the regional park form a dynamic backdrop to life inside the house. The contrast between inside and outside is blurred and the atmospheres of changing seasons are felt as much indoors as they are outside.

Situated along the other half of the building, bedrooms and quiet spaces offer secluded areas for family members to retreat from the commotion, allowing for privacy and personal space, without total disconnection from the rest of the house. East facing skylights bring morning light to both the bedrooms and the common space, ensuring the house is bright and airy throughout the day.
Wooden façade of the house blends with surroundings and forms an enclosure like feeling, opening towards the main scenery. Wooden fence is like an offset of the facade and surrounds only part of the house. The dense fence gives the so needed privacy for the family and preserves the site from stranger’s eye while the other part of the site is permeable, opening towards the railway and nature. The design of the building offers both seclusion and connectivity.
Good architecture does not need to be excessive. The richness of the house is not through expensive materials or things but rather through its ability to set the scene for life. Therefore this house is designed to facilitate memories, embrace family and celebrate everyday life.
comments