
The SIX is a 52-unit affordable housing project provides a home, support services and rehabilitation for previously homeless and/or disabled veterans. It is located in the MacArthur Park area of Los Angeles. McArthur Park has one of the highest densities in the USA with over 38,000 people per square mile and a total population of 120,000 people in 2.72 square miles.

Offering shelter and comfort, The SIX breaks the prescriptive mold of the traditional shelter by creating public and private "zones" in which private space is deemphasized, in favor of large public areas. The organization of the space is intended to transform the way people live-away from a reclusive, isolating layout towards a community-oriented, interactive space.

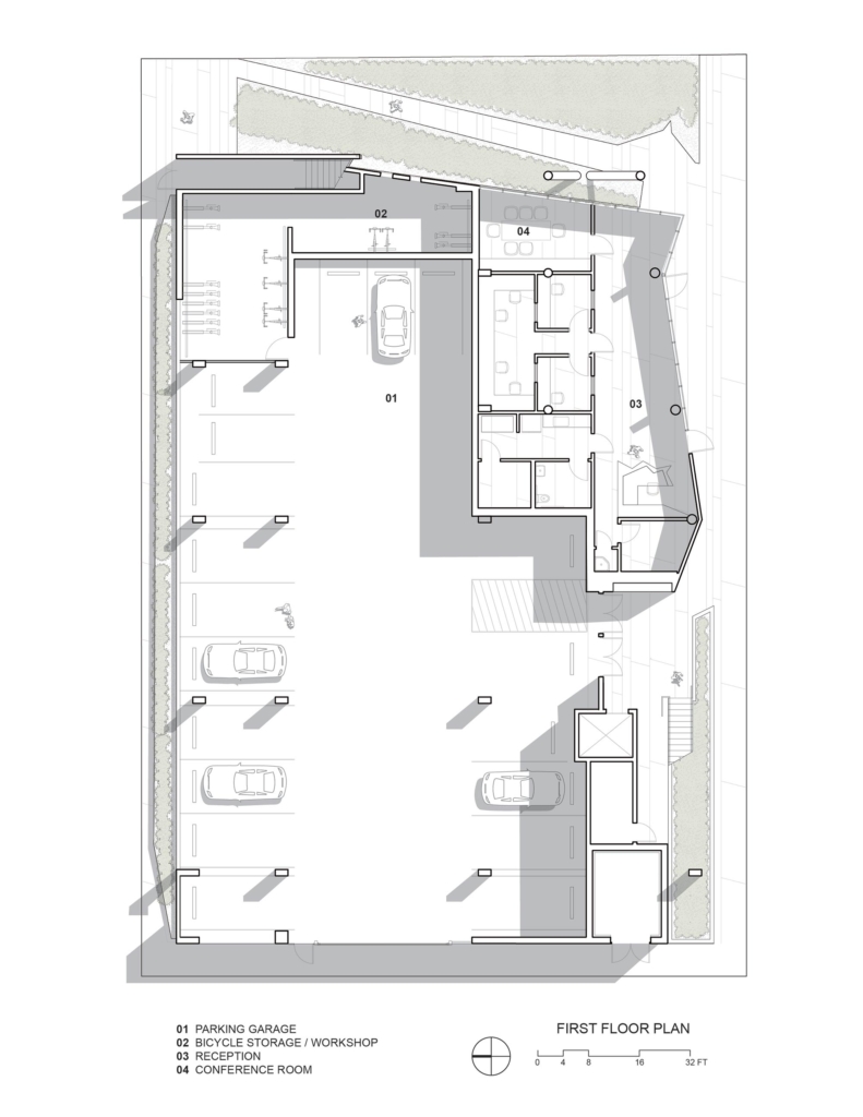
The ground level contains offices, support spaces for the veterans, bike storage and parking while the second level has a large public courtyard. Surrounded by four levels of housing units with balconies wrapped with a wood screen made from recycle planking the courtyard has large openings with green roofs that visually connects the space to the street on the lower level beyond. This allows the tenants to enjoy a secured open space while still connecting to the larger community.
The uppermost level has a green roof, large public patio and edible garden with panoramic views of the area.

The SIX distinguishes itself from most conventionally developed projects in that it incorporates energy efficient measures that exceed standard practice, optimize building performance, and ensure reduced energy use during all phases of construction and occupancy. The planning and design of The SIX emerged from close consideration and employment of passive design strategies. These strategies include: locating and orienting the building to control solar cooling loads; shaping and orienting the building for exposure to prevailing winds; shaping the building to induce buoyancy for natural ventilation; designing windows to maximize day lighting; shading south facing windows and minimizing west-facing glazing; designing windows to maximize natural ventilation; utilizing low flow fixtures and storm water management; shaping and planning the interior to enhance daylight and natural air flow distribution. These passive strategies alone make this building 50% more efficient than a conventionally designed structure.



































Other Details:
Project Team: Lawrence Scarpa, FAIA – Lead Designer; Angela Brooks, FAIA – Principal In Charge and Project Architect, Emily Hodgdon, Chinh Nguyen, CONTACT _Con-425E1F2732D Diane Thepkhounphithack, Cesar Delgado, Mario Cipresso, Brooklyn Short, Royce Scortino, Ryan Bostic - Project Design Team
Landscape: Brooks + Scarpa
Engineering: JAMA – Structural Engineering; IEG– Mechanical, electrical and plumbing; Barbara Hall – Civil Engineering
Specifications: Phil Easton
comments