
Text description provided by the architects
Few older coastal homes in Southern California are still standing that ooze the iconic Beachy character. Just a short walk to the Surf, the complete recycling of this 1957 Rancher was our attempt to passionately morph the tired home into an environmentally conscious, fun living space.
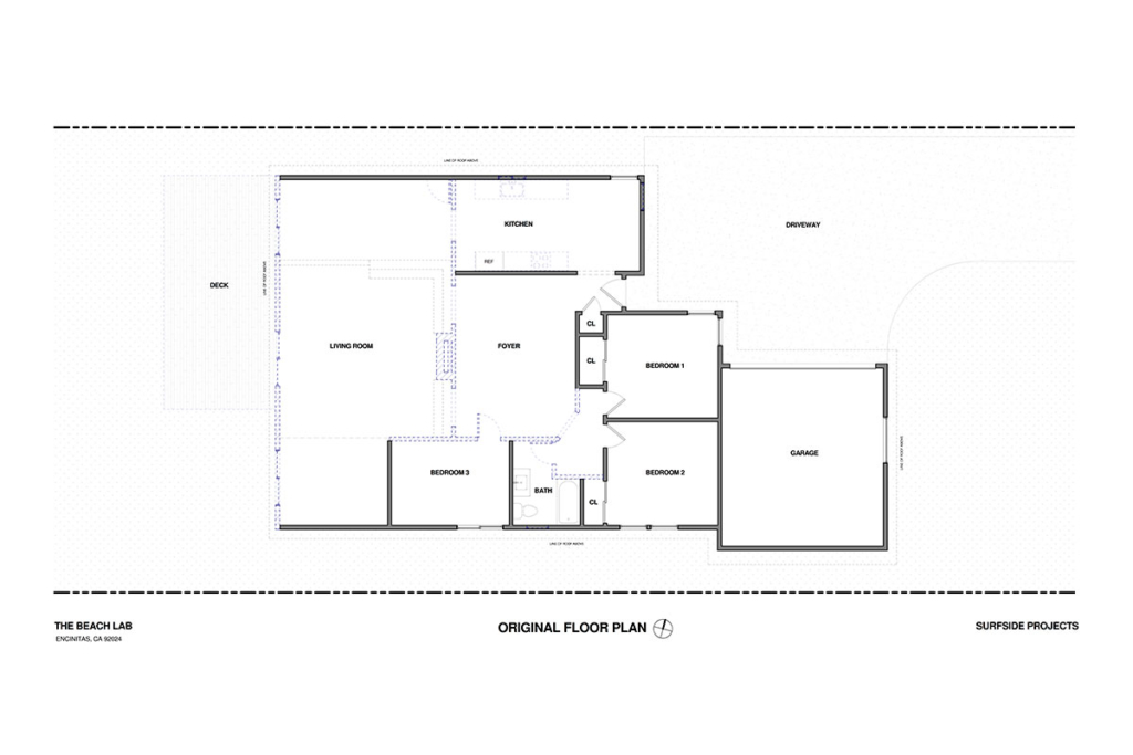
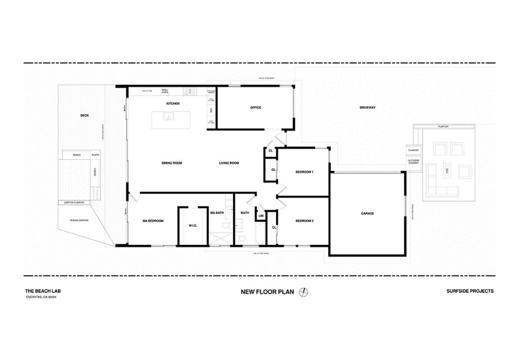
All of the original 2 bed + 1 bath bungalow's structure was kept intact, upgraded to current codes and now highlighted by the interior vaulted ceiling with exposed wood beams. An all new angled cube volume re-used the old concrete slab and replaced a termite & mold infested addition from the 60's. Passive designed overhangs, thoughtful use of natural wood, abundance of natural light, multi slide glass doors and a simple open plan define the clean design narrative.
The Beach Lab project was an R&D experiment to pour and mix in new yet proven materials and techniques for our own brand of pragmatic Modernism. Kitchen doors made of Marine-grade Plywood sheets were right off the lumberyard shelf. Exterior wood siding was sandblasted prior to staining in order to raise the grain and accent the texture of flat grain Douglas Fir. Both are subtle nuances of non-standard details which contributed honorably to maintaining the cool factor of this coastal lifestyle redux.
A Landscaping goal was to mimic the look of local State Beach Campgrounds and consciously reduce the home's water usage for irrigation. Extensive use of decomposed granite called "Palm Springs Gold" replaced the previous lawn, mass plantings of Succulents and drought tolerant grasses were installed as part of the Xeriscape plan. In a nod to the family's background, a Bonsai Juniper Tree was planted near the rear deck and adds to the softening of the yard in comparison to the surrounding hardscape.
Modestly scaled, the single level house is 1698





























comments