
Array Penthouse is in a spectacular location at Yarra’s Edge in Melbourne’s Docklands. The two-level Penthouse incorporates a dramatic double height space over the living area which is visually articulated externally, highlighting the apartment’s presence in the Melbourne skyline.
With sensational Melbourne views to the north and east, the apartment extends onto a protected outdoor terrace overlooking the Yarra River.
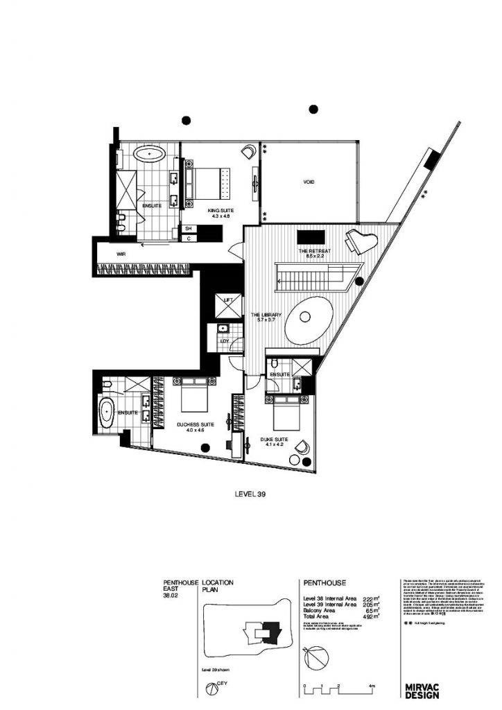
A crafted open tread timber staircase connects the two levels, leading to an upper gallery and spacious retreat which opens to the east through double height glazing.
Four ensuite bedrooms provide luxurious accommodation, and a spacious, elegant kitchen leads onto a butler’s pantry and utility zone with discreet external access. Array Penthouse has been designed to the highest level with bespoke finishes and an exquisite attention to detail. Luxury and elegance are interpreted into a sublime and timeless space, very much of its location.
comments