
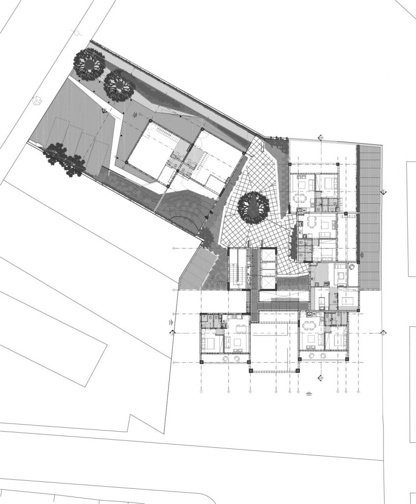
The particular urban base of Vila Madalena neighborhood in São Paulo defined the project created by Triptyque Architecture: a residential complex built in Arapiraca Street.
The integration with its context - a neighborhood of old houses, close to bars and restaurants - was the main objective of Triptyque's architects, in order to make a natural dialogue between the 8000m2 volume of construction and its relief.
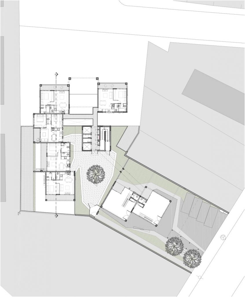
For this, the architects decided to split the complex into eight randomly distributed blocks, each one with an independent access, whose the position guarantees the best view and optimizes the ventilation and the natural luminosity. A ninth block shelters the elevators, the shafts and the stairs, it concentrates the exits of the metallic footbridges: place of circulation and socialization between the inhabitants.
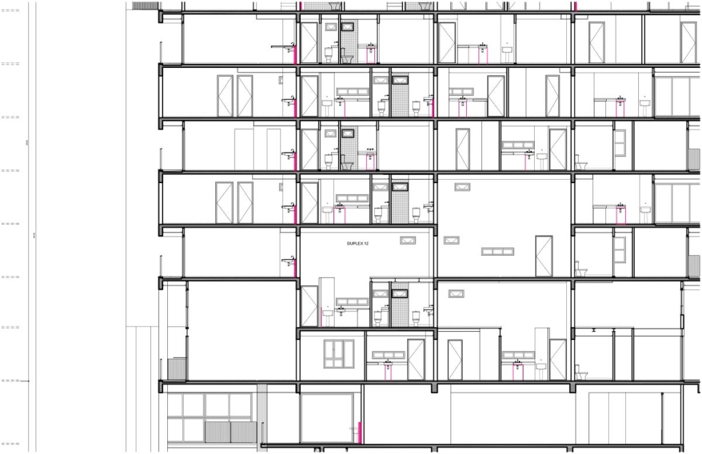
The result is a configuration of apartments allowing for privacy equal to independent houses. With generous terraces and a wide ceiling-height, the units varies from studio to triplex and can have different layouts. The shared area in the upper floors and particulary the walkways, are bathed in sunlight and ventilated by the wind.
The collective memory of Vila Madalena takes place in the choice of coatings, which the predominance of projected concrete - rough and rustic material, almost primitive, in graphite color - is a reference to the very used coating for the old constructions of the district.
The historical reference also appears in ceramics, as a mention to the Portuguese, the first immigrants who occupied the region. The blue and white azulejos, a tribute to the artist Athos Bulcão, cover all internal facades. Smooth and reflective, they give life to the facades while illuminating the center of the ground. The apparent layers of the gabions give a brutalist aspect to the whole.
The vegetation plays a central role in this project, whether in the plats attached to the walkways, as in the ground-floor, where the green density creates an atmosphere of urban forest under the building. As if the building spring up from the jungle, opening like a square to the city.
At the building's both entrances, the porosity fades the limit between the ground and the sidewalk creating a blurred boundary between the public and the private, and thus revealing the generosity of the project as a whole.
"We have designed the Arapiraca building integrated




























comments