
MCM began working with Bird & Bird in 2012 when they began developing a forward-looking property strategy for their London accommodation based on the expiry of several lease obligations in 2016. Split across three buildings, Bird & Bird wanted to consolidate into one London base and appointed MCM to undertake due-diligence to help with their building selection process.
Following this initial due-diligence, Bird & Bird decided to take the whole of 12 New Fetter Lane, a 140,000 sq. ft. building over ground and 12 floors. MCM worked very closely with Bird & Bird to establish a robust brief that would inform the design of their new workplace.
Bird & Bird saw the move as the opportunity to work in a different way, and become far more open and collaborative which they felt better reflected their ethos as a firm. The results are an agile ready open plan work environment that also contains a variety of work settings that support collaboration and concentrated work. The flexibility of space throughout the building as been integral to its design with the intention of bringing clients into the building to work more closely with lawyers, particularly on substantial matters or projects. Maintaining information security at a high level has also been incorporated into the layout.
MCM consulted widely with staff and the Bird & Bird steering group to communicate the designs at the outset to ensure there was buy-in across the organisation. It was important to help reassure staff that the new office would meet their needs in terms of the technology that allowed them to move around easily and in terms of appropriate quiet space for concentrative work.
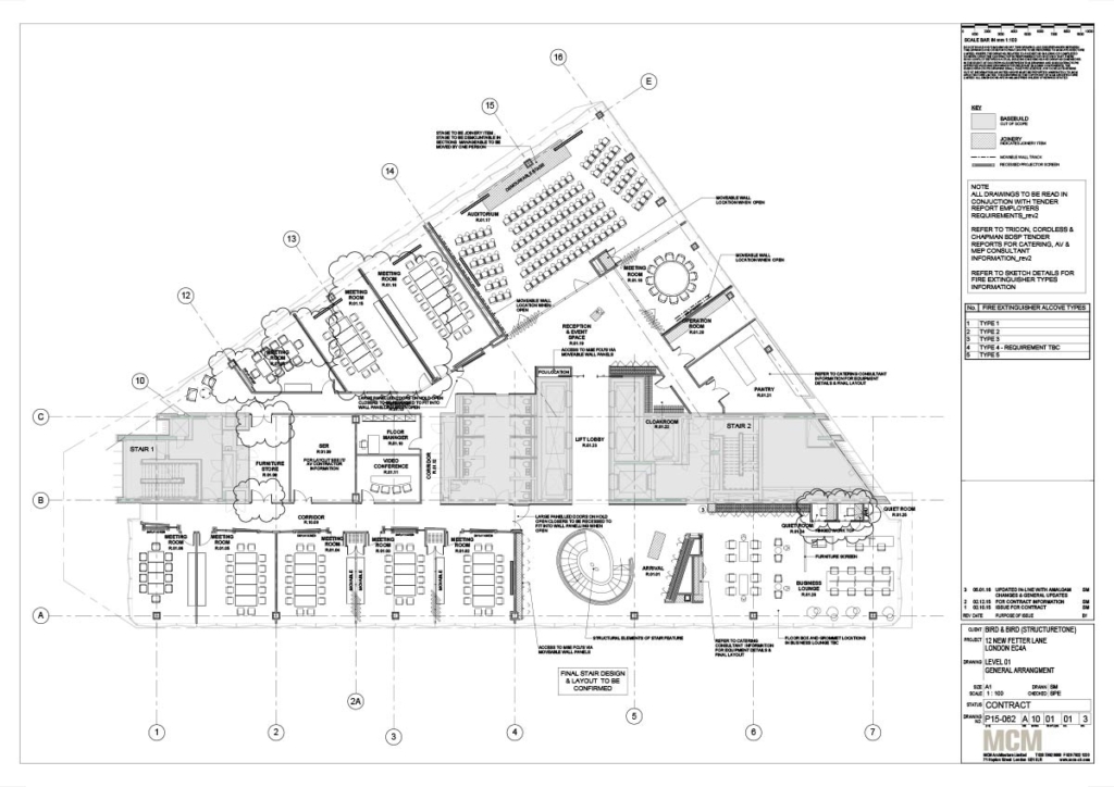
The agreed layouts addressed these concerns successfully, and the building provides Bird & Bird with all the amenities they require, including extensive client facilities with a seminar space and client business lounge on the 1st floor and a further client meeting suite on the 12th floor.
A feature staircase was installed in reception to bring large numbers of visitors easily up to the seminar space and client business lounge on the 1st floor. The stair itself, designed by MCM and manufactured by EeStairs, is a focal point as you enter the building.
The attractive staircase finished in a liquid metal antique bronze features four landings and elliptical geometry. Created from fabricated from mild steel with a plate steel inner balustrade it features an illuminated recessed handrail.
The staircase includes EeStairs’ luxury EeSoffit finish, a cnc processed polymer soffit that is incredibly stable and durable.
Steven Bray, Senior Creative Advisor at EeStairs UK commented: "The Bird & Bird feature staircase is an extraordinary example of where elliptical geometry, a towering 6.2m floor height and the presence of four large landings contributed to the complexity of the design, manufacture and installation stages. The design process focused on delivering specific positions for the first and last treads, flowing inner and outer balustrades alongside multiple landings and balance of proportion with structural performance and build ability.
With the staircase making a long elliptical journey punctuated by landings, the pursuit for structural performance was a significant challenge requiring the discreet placement of 12 tonnes of mild steel and the development of an incredibly stiff inner balustrade. EeStairs’ craftsmen rose to the challenges associated with forming the complex elliptical EeSoffit and steel balustrade with integrated handrail whilst the fitting team focused on ensuring that the stair was installed perfectly and prepared for the cold spray antique bronze liquid metal finish."
Due to the high quality of the base building, finishes were selected that respected both its design and finishes. MCM took a great deal of care to ensure that the finishes of the fit-out were of the same high standard and matched or complemented the base building. Feature elements such as the angled fabric panelling on the ground floor picks up on the profile of the façade of the building. The fit-out maintains the base build BREEAM rating.
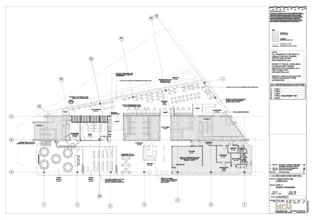
At the heart of the building is the 11th floor, a central hub for staff to grab a coffee or a bite to eat, and where they can hold informal meetings throughout the day in a space specifically built to enhance collaboration. The lightness and brightness of the 11th floor and the tremendous views across London from the terrace help to make it a relaxed and dynamic atmosphere for all staff.
Within the working floors, Bird & Bird have moved away from the traditional cellular approach to a 100% open plan environment. This has been a big change for the organisation, and the briefing and early consultation was integral for making the change a success.
In the office areas, MCM have taken advantage of the excellent natural light and views by placing desks around the perimeter of the building. Opting to move in to a more open plan environment also had an impact on fit-out costs. These were substantially reduced, as there were limited modifications to the base build air conditioning on the working floors and a greatly reduced number of partitions were required.
To ensure that the integrity of the design concept was maintained throughout the construction MCM worked closely and successfully with the contractor, Structuretone, under the design and build contract. The whole team worked seamlessly together – and the result is a testament of what a fully integrated team, including client, landlord team, design team and contractor, can achieve.
Bird & Bird wanted the new office to reflect their openness to their clients, to provide additional services for their clients and to encourage collaboration and communication across all practice areas within the organisation. 12 New Fetter Lane has achieved that, with the new environment being very well received by clients and staff alike.
comments