
Text provided by the architects
The manufacturing and administrative building for a rapidly growing family company. The construction with a green roof and transparent spaces support contact and communication within the company. The new building complies with the strict norms of manufacturing.

Pilana Karbid is a young family company manufacturing carbide tools. The company is settled in an industrial area near Hulín with 85 year-long tradition of manufacturing cutting tools. In eight years of their existence, there was a development of production and today the firm employs 45 people. Thanks to the development a need to build a new factory building arose. Therefore, a new manufacturing hall and an administrative building were built in two phases. Despite the rapid growth of the company, there has been a need to stay close together. Thus the communication within the building and keeping close distance, as well as visual contact, became the main theme of the architectural design.

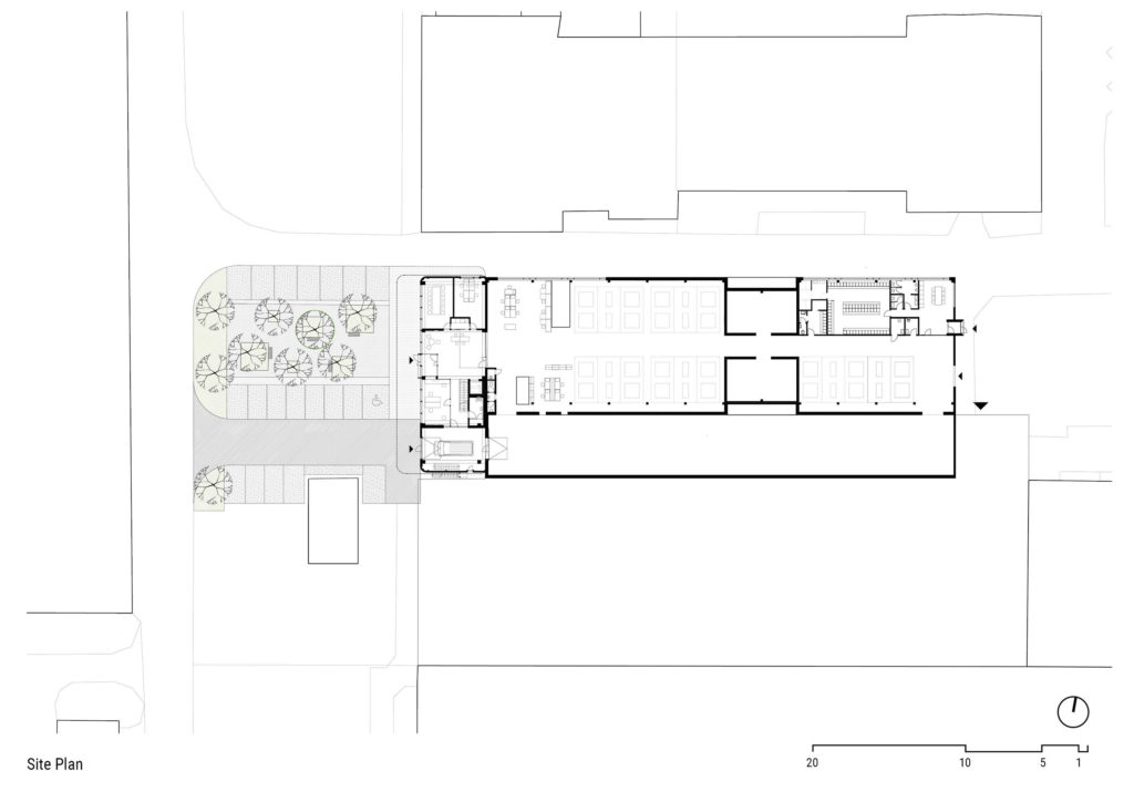
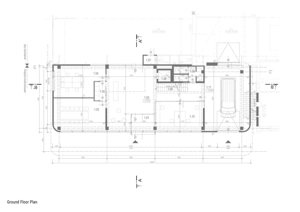
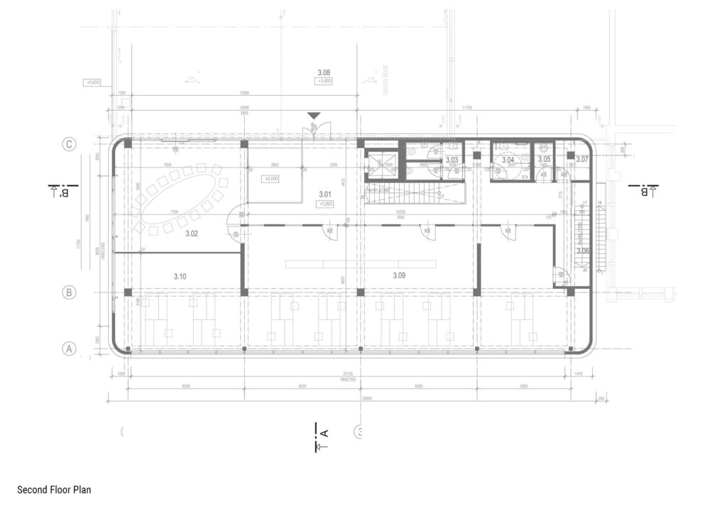
The factory area of the PILANA company is built-up and busy space. For the new building it was necessary to consider its restricted opportunities for further expansion to the surrounding grounds. At first, a single-storey hall was built, later completed by a three-storey building with an overhanging upper floor, which could later be extended to one floor. The rectangular floor plan hall meets strict standards for manufacturing. There is enough natural light, which permeates through windows and skylights purposefully oriented to the north. Space is well-arranged and clear with the all-year stable temperature of around 24°C. The hall has a walkable green roof and is covered with sandwich panels which run to the administrative part of the building.

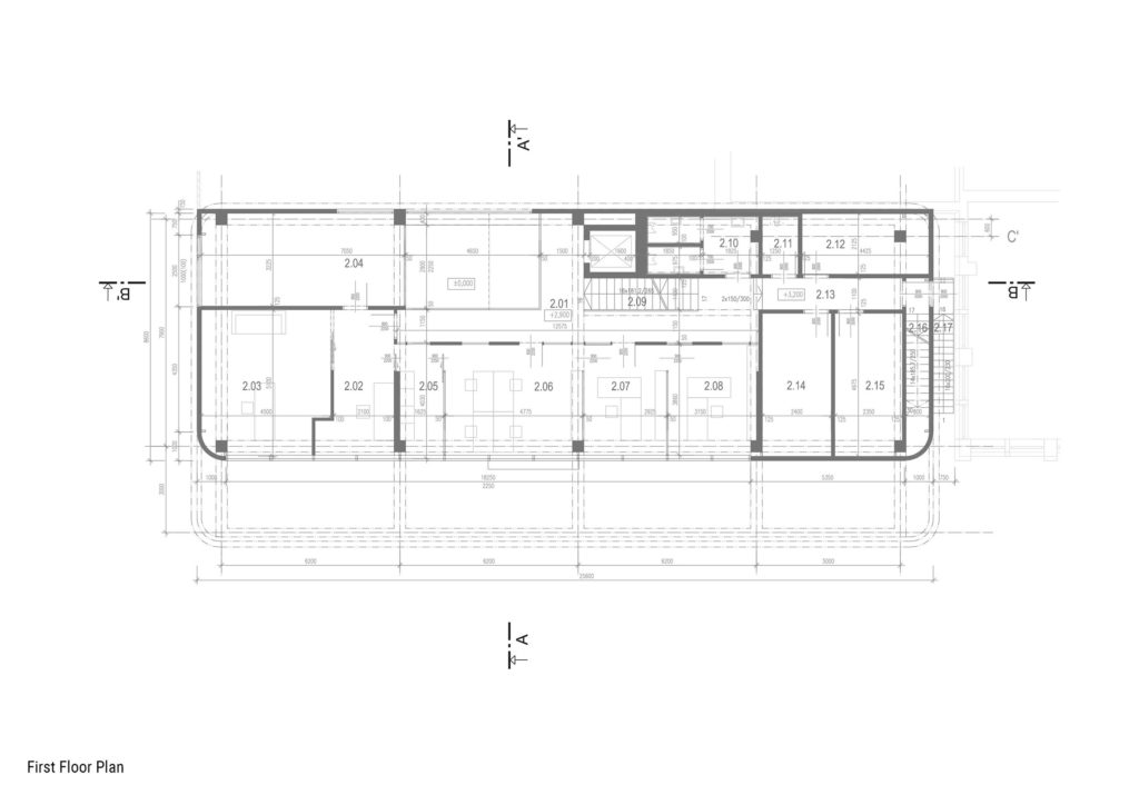
The three-storey administrative building is a monolithic concrete skeleton that is visible in the interior. Individual offices are by its measures and lower headroom closer to the rooms in a family house than in vast open-space offices. An important communication feature inside the building is a small roofed atrium through which light permeates. Walls in the hall and in the administrative part are mostly transparent, an elevator shaft and main entrance are accented with the blue colour of the company. It is possible to see from one building to another, and view the manufacture works from the exterior also. Visitors can see movement in the buildings and vice versa, employees can see the visitors. In the atrium, there are galleries that function as meeting space and a way to the green roof, from which you can see as far as to Hostýn hills.

Along with the new buildings, a nearby parking was also reconstructed. Here, the design worked with similar features as the ones used on the administrative building and new trees were planted to complement the greenery on the roof.







































[…] and its wide, bright spaces offered the perfect base for KAAN Architecten to design their new office. The beating heart of the project is an extensive working area dedicated to architects. This space […]