
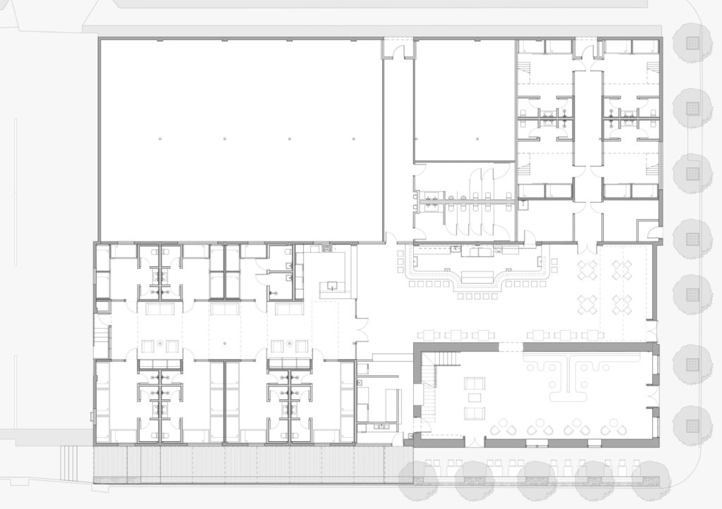
A boutique hostel, cafe, and event space designed for the epicurean traveller and locals alike. It is nestled in an existing 2-story late 1800’s stone building and a mid-century brick warehouse right in the middle of the upcoming transit-oriented development adjacent to downtown.


Black Rabbit utilized a rich palette and textured materials, a theme aptly referred to throughout the design process as ‘dark and stormy’.

The result is a truly unique communal experience that offers affordable rates with impeccable style at the nexus of development in Austin.






















comments