
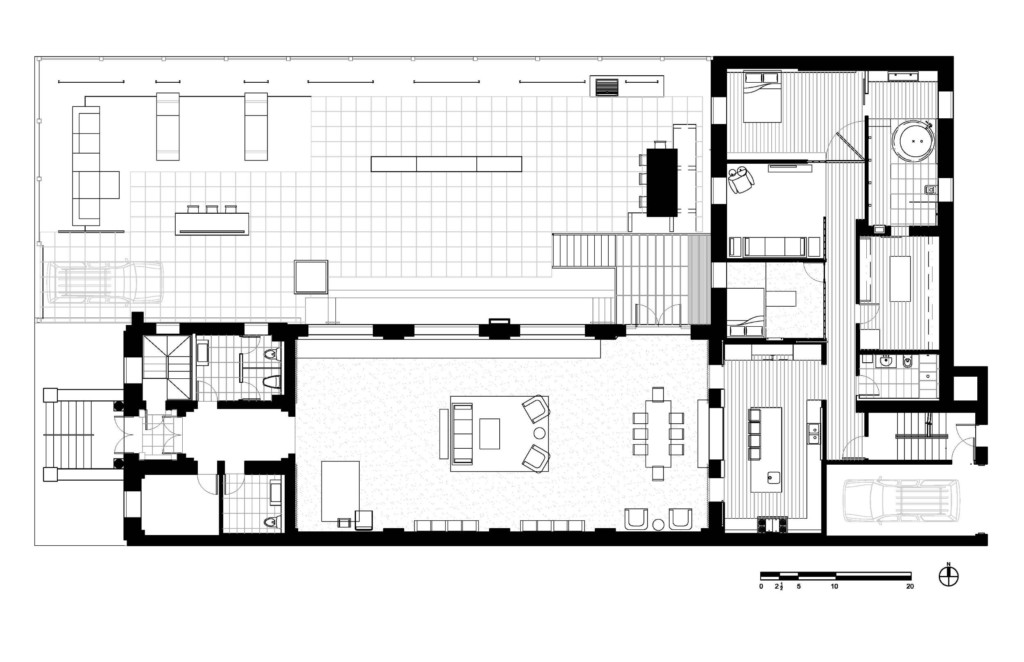
Constructed in 1918, the Lincoln Public Bath was transformed into a modern residence and event space. The renovated interior has a contemporary spirit juxtaposed with remaining bathhouse details. The original building entry hall was retained, and flanked with Men’s and Women’s restrooms detailed with ribbed glass and dark toned tile reminiscent of the pre-depression era.

The volume of the meeting hall is preserved and improved with large picture windows overlooking the courtyard. A recessed projection screen and sound system for events were installed as well. Accessed through two pocket doors for optimal flow is the kitchen, which serves as a catering space for events, as well as a full kitchen for the private residence beyond.

Large pantries flank intimate bench seating, and a large stainless island provides ample prep area. All the appliances were located below the counter to allow head room and ample space for art. A simple stainless shelf atop an etched glass backsplash keeps the counter clean.

The private residence includes a guest bedroom with bath, family room, and master suite. Platformed floors take advantage of 14ft ceilings. The material mix of ribbed and channel glass with split sheen tiles plays off ideas of light, water, and refraction with the history of the bathhouse.


The historic exterior facades were preserved, receiving only limited restoration. Geothermal wells in the courtyard provide heating and cooling for the building. A future phase of work will transform the large side yard into a terraced landscape with a series of outdoor rooms.

















comments