
A quaint 'sticks and stones' cottage which forms the heart of this family home is situated in a grade two listed site and is set within a concealed location, surrounded by scrub and woodlands.

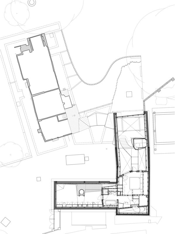
The proposed design sensitively organises the existing farm buildings, enabling an external – internal landscape approach to the otherwise disconnectedness of the farm buildings. The role of play as a modality has also been a key influence that forms a looping internal landscape through which imparts a journey of varying expansive spaces.

Alongside this journey, sculptural landmarks were inserted between and into the building, either as a way of contributing to the journey - or diverting it. This approach to design invited a type of playfulness into everyday activities. The experimental journey throughout the buildings became one compressive space, full of light, materiality and history.

What were the key challenges?
The modernisation process involved preserving some of the buildings' original features, which were removed and restored before being reinserted into the reconfigured interiors.
What were the solutions?
By incorporating the farm buildings into the house, we sought to create a series of interconnected spaces with a dynamic relationship between indoors and outdoors.
The resulting configuration of rooms creates a sense of continuity between older and newer spaces with varying proportions, while several "sculptural landmarks" are used to enliven the journey through the building.
What are your favourite parts of the project?
One of the key interventions is an angular glass volume that bridges the space between the main house and the outbuildings, while retaining the visual connection between the yards on either side. This reflective and transparent tunnel purposely stands out as a new piece of connective architecture," the architects added. By its very nature, it implies a type of 'time travel' – from a rural historical past, to a new modern playful present and future.
What was the brief?
Renovation of a series of outbuildings situated alongside the 400-year-old Grade II-listed Stanyards Cottage. The project sought to retain the existing scales and relationships between the buildings, while updating them and incorporating them into a unified scheme.







































comments