
This new contemporary residence in the traditional Toronto neighbourhood of Forest Hill is an excellent example of how modern design can both fit in yet also stand out. Large slabs of Indiana Limestone and locally sourced Algonquin rubble stone, both prevalent throughout the neighborhood, clad the exterior walls and base of the house, tying it into the local vernacular. Careful detailing of limestone projections around windows and copings creates subtle relief, producing shades and shadows that break-up the flatness of the walls, a lesson interpreted in a contemporary way from the older surrounding houses.

The house nestles into the landscape - its Algonquin rubble stone base reappears on the landscape garden walls, and sandblasted Algonquin is used for paving and the broad steps leading to the front entrance. At the rear, the same Algonquin clads the back wall of the swimming pool to create a unified composition.

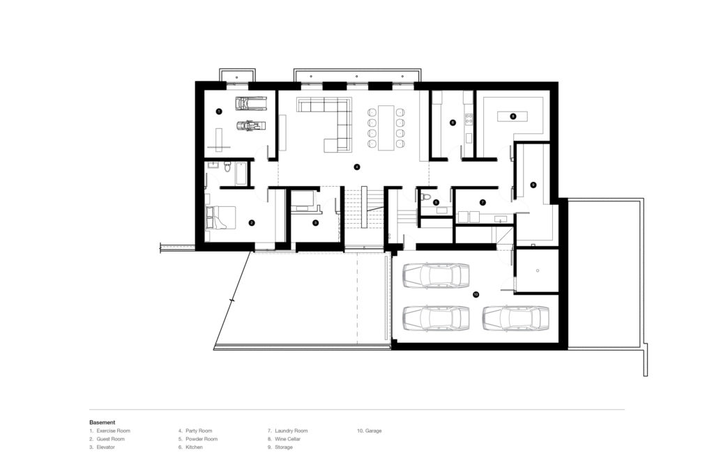
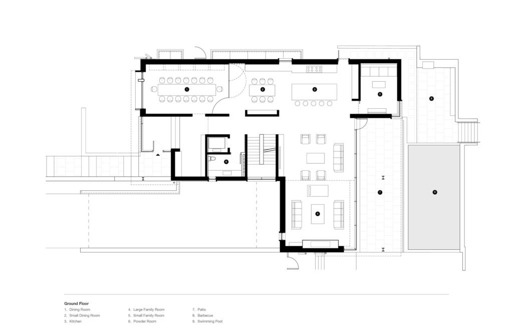
Natural light floods the interior: the dining room is illuminated by a linear skylight along its length and can be opened into the kitchen by a series of pivoting doors to allow it to seat up to 30 people. A 16-foot-high living room with clerestory windows on three sides occupies the back of the house, featuring a continuous wall of glass that looks out onto a covered patio with a deep overhang to provide shading.

Taylor Smyth Architects and Cecconi Simone collaborated on the design of the house, with the sophisticated interiors custom designed by Cecconi Simone to incorporate bronze privacy screens, stone, wood paneling and built-in millwork.

















comments