
The project has been developed on a very site-specific approach. It has elaborated solutions, that primarily refer to the historical context of the neighborhood of Fagerborg.

The project unites tradition and innovation in a carefully reflected way and provide good homes that will help to form a qualitative neighborhood. Pilestredet 77/79 has been designed to combine new buildings with a historic environment in an attractive and innovative way.
The plot is in a residential area surrounded by buildings from the 1800s and 1900s. Through a conscious use of high-quality location and situation-adapted architecture, the aim is to reinforce and develop the inherent identity of the place. P77 becomes an environmentally friendly and urban residential environment with high architectural qualities.

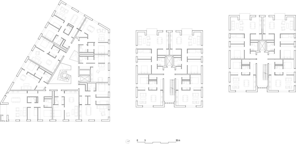
Pilestredet 77-79 is located between 4 distinctive Oslo city neighborhoods - Fagerborg, Majorstuen, Norabakken and Stensparken. The housing complex acts therefore as a specific transition in the urban fabric, therefore are the three buildings’ architecture different.
The lower buildings (Pilestredet 79a and 79bB) have a townhouse architectural typology, which gradually withdrawn from the street as they go up Pilestredet and are thus integrated in and create a transition to the city villas with their front gardens in the historical fabric of Fargerborg. They have the same footprint and a principle of alternately four and two apartments per plan.

The bigger volume (Pilestredet 77) designed as a city block, answers the street corner geometry. It defines the end of Fagerborg neighborhood and a transition towards the more trafficated urban fabric of the site, at the meeting with the more urban identities of Majorstuen, Norabakken and Stensparken neighborhoods. It includes six to eight apartment units per floor of different sizes.
The lower floors have several smaller units while the higher ones contain larger apartments. There are varied offers with apartments of different sizes and identities that ensure a complex and diverse community.

Quality and detail in all solutions are emphasized. The buildings have a site-adapted limited material palette with brick exterior. The use of hand-crafted bricks was the most important aspect of the project architectural facade expression. It is an historical material which can be assemble manually in a very sculptural way and define the project’s identity. The selected bricks have been hand-baked so that they get a very specific structure and rough texture. The façades of the new buildings celebrate long craft traditions, with handmade bricks that play on layers with modern lines, and large windows from ceiling to floor.

The project also has prosperous and well thought internal common areas which create a positive and worthy common framework for the residents. Inside, there is a robust material palette where the castin-place concrete walls create a modern but timeless expression together with a warm oak material used for the floors and ceilings and wrapping up the staircase.
The project has an underground level with parking, 4 to 5 floors for a total of 59 residential units, as well as a neighborhood café, which is also designed in order to create a local and inviting gathering place (meeting, afterwork, community evenings…), and can serves the housing complex as well as the surrounding neighborhoods.
All the roofs have garden parcels and are used as attractive outdoor spaces.



























Project Credits:
Program: New housing with 59 apartments, café and underground parking
Client: Aspelin Ramm Eiendom AS
Commission type: Invited competition (2015)
Design Team: Reiulf Ramstad Arkitekter
comments