
Pool House allowed us to re-imagine the way a family could live both now and into the future by transforming the client’s existing property into a multi-generational home for life.

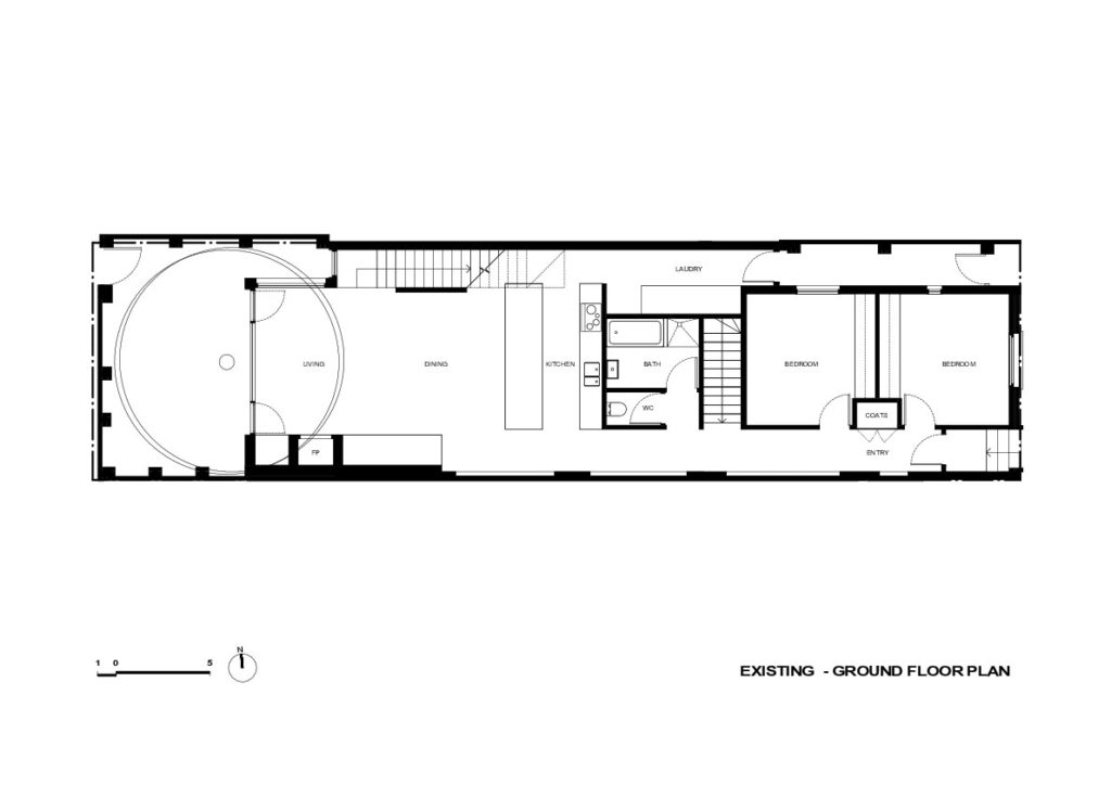
The project gave us a unique opportunity to overcome the shortfalls of older style terrace housing with a modern, context-sensitive development.
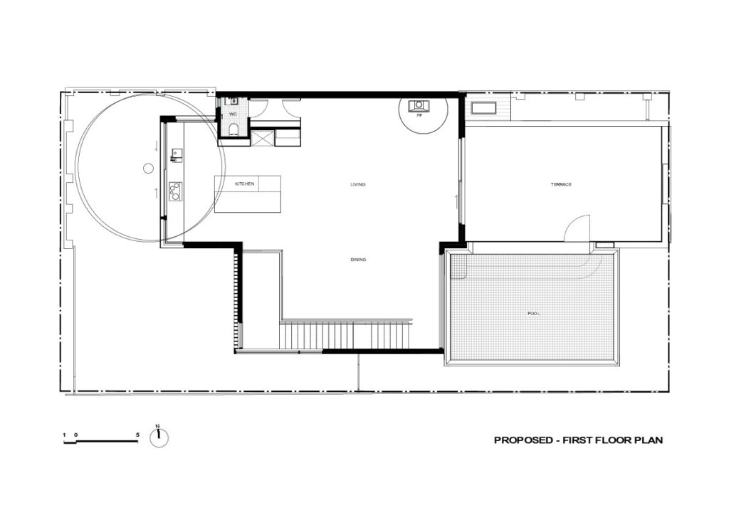
The priority was to bring as much light as possible into living spaces while also connecting to year-round, usable outdoor space. To achieve this, the generous, open plan living area was elevated to the first floor, allowing the client to gain access to incredible views, natural light and cooling breezes in the warmer months.

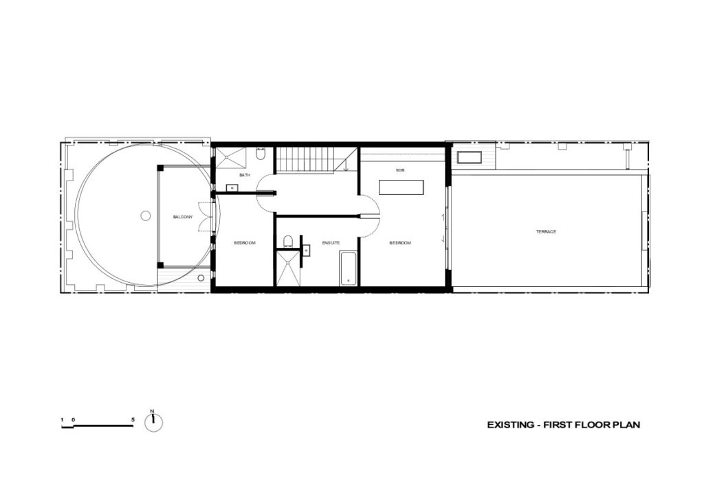
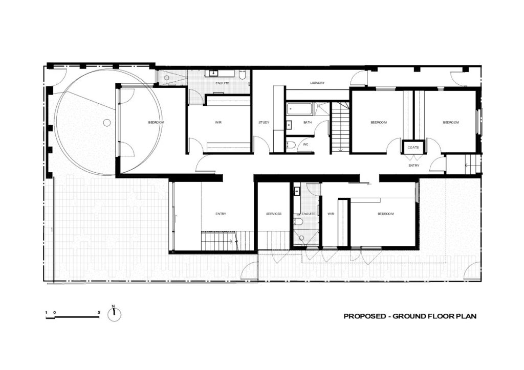
The swimming pool was located adjacent to an existing first floor terrace area that was previously under-utilised, bathing it in light and seamlessly connecting it to the living area. Bedrooms were positioned on the ground level to enhance thermal stability and privacy while the double car space was positioned off the rear laneway, adjacent to a new internal entry lobby.

Externally, sensitive use of scale and detail allows the house to sit comfortably within the surrounding Victorian heritage, ensuring compatibility with the existing streetscape while offering a uniquely contemporary way of approaching life in the inner-city.






































comments