
A new district on the fringe of Nanjing, formulated on the green dream of modernist planning, and comprised mostly of large autonomous gated housing communities has left Pukou as a well-engineered city but one with limited opportunity for dynamic public life. This project brings an intense moment of urbanity to the district, maximising public space and opening opportunities for the emergence of public life.
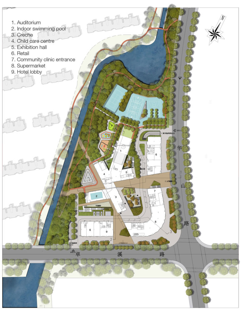
The site is on a large block located on a corner of two major streets. A canal wraps around the site forming the rear site boundary. This boundary has been transformed into a green network of public open space.

An Abstraction of Typologies
A freely interpreted and eroded perimeter block typology forms the basis of this project’s architectural figure-ground. With two street edges left in place and the two other sides adjacent to the public open space removed, the private courtyard associated with the typology is protected from the street and connected to a larger network of public open space. Two civic-scaled openings mid-block effectively reduce the block size for pedestrians and provide public access through the courtyard to the public open space beyond.

A tripartite urban fabric was seen as a positive contribution to the city, with: a robust ground floor; four stogeys of middle-storey; and a slightly misbehaving attic that completes the abstraction of typologies. Within the private court, a pavilion folded into the site ensures no reduction in green open space and provides an interesting topography to an otherwise flat landscape.

Mixed Programs
With collection of mixed programs: active-edge retail and services at ground floor; a 104-room hotel, plus office space in the middle storey; a pre-school of 2,500m2 in the attic; and finally a community centre with swimming pool and auditorium in the courtyard; Pukou Community Centre is a destination, not just a place to find government services.

And Science
The façade consists of a series of thin concrete overhangs which form a platform on which to sit a series of folded perforated metal sails that respond to the changing facade orientations – ensuring minimum heat gain through an otherwise glass building. The outcome is a well ventilated and naturally lit building reducing energy consumption and providing high amenity for both staff and visitors.
Both and
It is said that urban design’s role is to ensure a great city despite poor architecture. Our ambition for this project is to provide both a high amenity building and landscape, and a more than positive contribution to the city.






























Credits:
Client: Nanjing Jiangbei New Area Investment Development Co., Ltd
Typology: Community centre, office, hotel, retail, leisure, public landscape
Program: 400p auditorium, municipal offices, 70 room hotel, community centers, early education institutions, gym, swimming pool, underground parking, retail and public sports + recreation landscape.
BAU Project Team:
Architecture: Huang Hua, Gao Weiguo, Billy Voon, Gu Jiani, Zhang Dejun, Steve Whitford, James Brearley
Landscape: Wang Chenlei, Xiong Juan, Wang Can; Zhu Jialiang
Contractor: Nanjing Jiangbei New Area Investment Development Co., Ltd
Engineer + Architectural Documentation: Nanjing Kingdom Architecture Design Co., Ltd
comments