
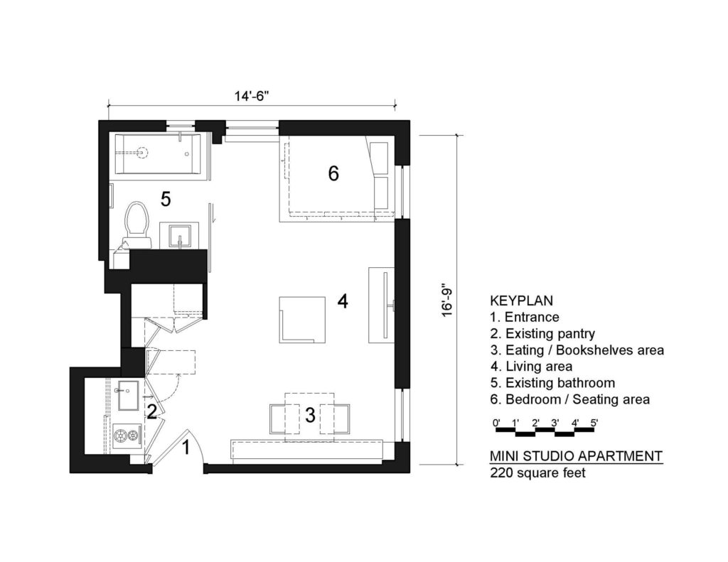
All too often, living the New York City lifestyle means making the most out of a confined space. To accommodate this, the redesigned 220-square-foot studio conceals the clutter of everyday life.

The driver of designing small spaces is rooted in simplicity, where anything superfluous can reduce on the usable area. Divided into three areas, space and storage is provided for every activity so the apartment feels far more spacious without sacrificing any practicalities.

The sleeping area consists solely of a custom bed that hides sliding end table and storage along the framing. Whereas the living room has a simple sofa, coffee table, and custom bookcase. The front panel of this bookcase is actually a collapsible table hiding a pair of folding chairs for an intimate dining moment.

The last area is a custom millwork wall composed of an array of hinges, folds and other articulating mechanisms that maximize efficiency and space of the studio’s kitchen, storage, and bathroom. The frosted sliding barn doors and white mosaic tiled walls in the bathroom allows natural light to fill the space even further. In keeping the apartment as free and open as possible there is even a blind corner in the bathroom that conceals shelving for the toiletries.
Hand crafted lighting fixtures and dark bamboo floors not only provide a modern aesthetic but are extremely durable, sustainable and environmentally conscious, too, helping reduce the interior’s footprint in more ways than one.
comments