
Waubonsee Community College’s New Field house, with its luminous super-scaled “Waubonsee Athletes Wall” and brilliant “Waubonsee Chiefs Red” entrance, creates a compelling new campus focus. It provides professional-level support facilities for student athletes, non-athlete students, and guests. The new Field House also marks the completion of the College’s 2020 College Master Plan.

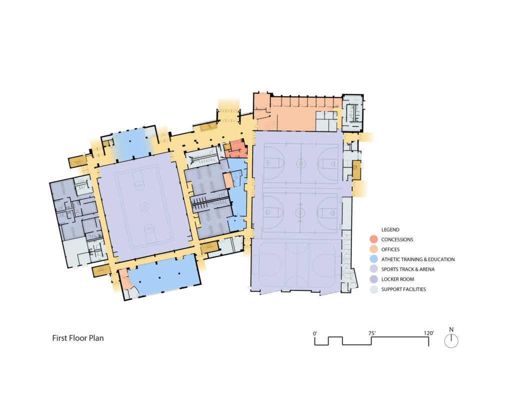
Located on its Sugar Grove campus, the new 59,000 square foot Field House and renovated 55,000 square foot Erickson Hall provide training, practice, and competition space to support Waubonsee's athletics program, including credit and noncredit physical education and wellness instruction. The complex offers a seamless, first-class facility that makes it easier for multiple teams to practice. It also serves as a recruiting tool.

The 2020 plan included adding seven new buildings between the four campuses as well as multiple infrastructure and renovation projects. Cordogan Clark provided master planning and architectural services for Waubonsee Community College and assisted in the development of the 2020 College Master Plan.

Highlights of the new state-of-the-art 59,000 square foot $19 million field house include:
Sustainable design features include a white roof; rainwater harvesting; energy recovery wheels in the heating and cooling systems; and a commissioning agent to ensure systems performance.

"This building is more than just a place to play or work out," said Waubonsee President Dr. Christine Sobek. "It will also help us foster pride, develop our students as well-rounded individuals and contribute to the quality of life for our community."
Cordogan Clark were the architects for the new Aurora Campus and new Field House and renovated Erickson Hall; Turner Construction provided construction management services for both projects.
comments