
Situated among the hills and mountains of Faqra, to the North East of Beirut, Villa N is a new family house designed in response to the topography and the natural context of the site. The villa sits upon a hilltop, which offers open views across the landscape. The project is prone to outdoor living in the summer months and a cozy shelter once coated in snow during the winter. The design of the house needed to be flexible enough to accommodate these extremes.

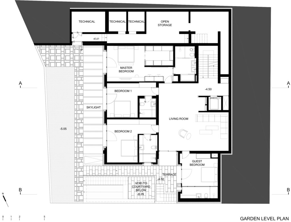
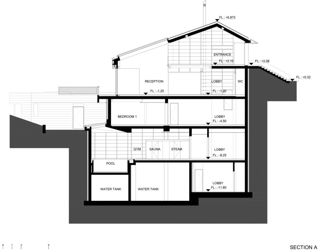
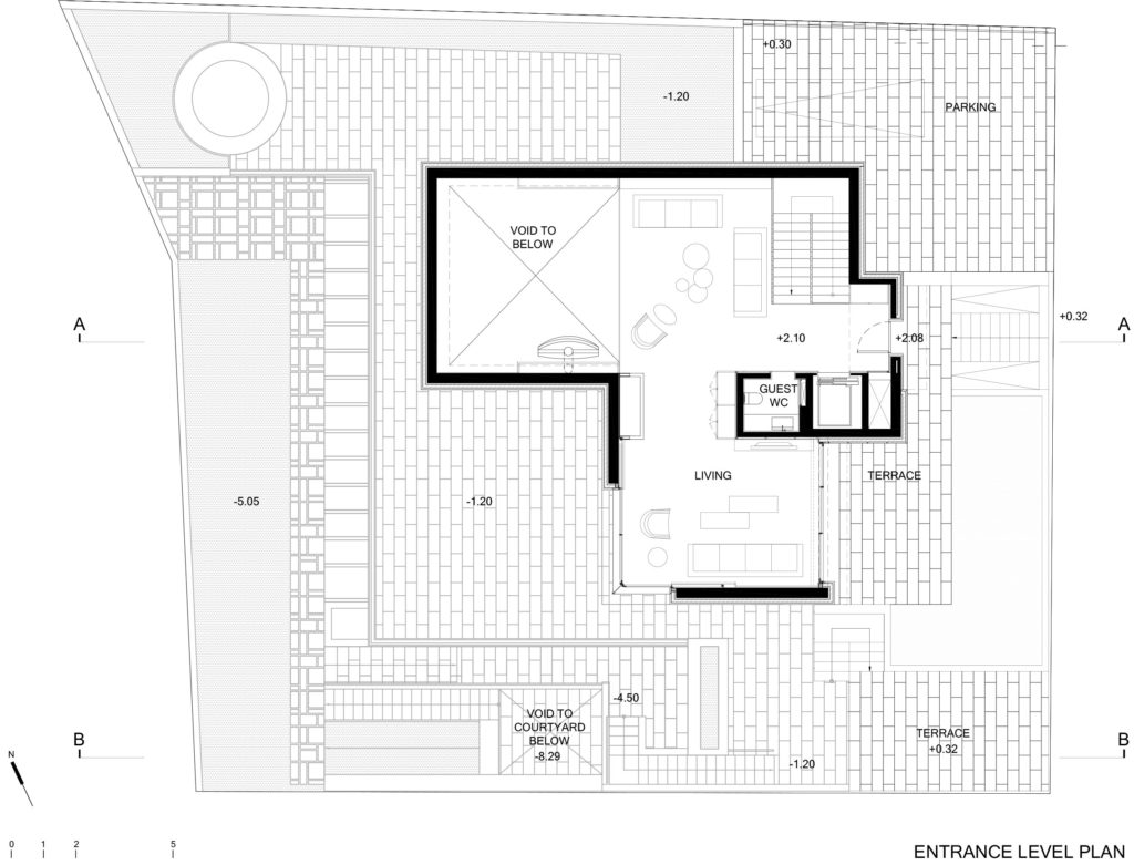
Raed Abillama Architects gently pushed the four-bedroom house into the hillside itself, helping to reduce the visual impact of the building. Villa N steps down the steep slope by degrees, with all of the key living spaces oriented towards the open vista. Accessed at the uppermost level the house then unfolds floor by floor, with significant spatial and volumetric drama created by double height living spaces and the spinal stairway. The principal storeys connect not only with the views but also with adjoining terraces and outdoor rooms. The glazing system disappears within the walls to blur the boundaries between the inside and outside, thus offering a more immediate sense of connection with the surroundings.

The naturally lit basement level features an indoor swimming pool and spa, which can be used all year round, while also leading out to a sheltered courtyard. Throughout the house concrete and glass sit alongside natural materials, such as French oak paneling and parquet, which introduce both texture and warmth. A sculptural feature fireplace in the spacious living room comes into its own during the winter months, when the snowscape is framed by the large, picture windows.
comments