
Building D(emountable) is a modern, sustainable and fully demountable structure on the site of a historic, monumental building complex in the center of Dutch city Delft. This site is owned by cepezed, an agency with expertise in the development, the design and the realization of buildings.
Creative cluster
cepezed acquired the complex with former laboratories from Delft University of Technology in 2012. It transformed the monumental buildings into a creative cluster with housing for various companies in the creative sector, including the office itself. However, the only non-monumental building on site was in poor condition. It has now made way for the new construction of Building D(emountable). Again, this is a full-blown own development of cepezed and it is intended for companies in the knowledge-intensive creative industry. It houses the app and website developer, 9to5 software and a game developer Triumph Studios.

Circular prototype
The Netherlands has set itself the goal of rendering all construction activities fully circular by 2050, while cepezed has a long reputation for modular and demountable design and construction. Moreover, director Menno Rubbens of developer cepezed projects is part of the national program committee to achieve the national circularity goals. Partly for those reasons, Building D(emountable) also had to become an example project on cepezed’s own grounds. The way in which the office approaches circular construction and the way in which one can make buildings that can later donate to other projects or even be reused elsewhere in their entirety.

Lightweight, flexible and gas-free
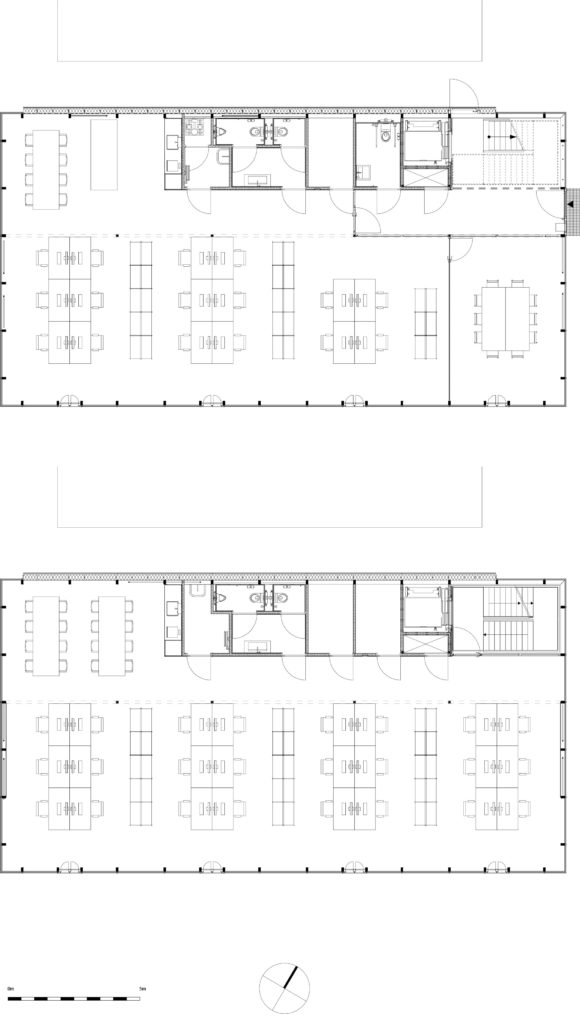
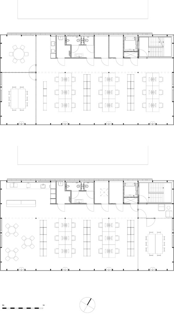
Building D(emountable) has exactly the same footprint as the existing building that was no longer good and was demolished. It measures 11 by 21.5 meters and has four floors of about 200 square meters of lettable floor area each. In addition to being demountable and remountable, the structure is also super lightweight: the use of materials is kept to an absolute minimum. The building is also completely flexible in its arrangement, has no gas connection and is equipped with heat recovery. The ground floor is made of poured concrete, but otherwise, all building components are modular and dry mounted. Supreme simplicity has been an important principle in the design.
Steel, wood, and glass
Building part D(emountable) consists of a rationally optimized building kit with a steel, prefabricated and extremely slender main supporting structure. The structural floors and roof are made of lightweight wooden Laminated Veneer Lumber (LVL) elements that are also prefabricated. These have a compact height and the installations are integrated within them. The ribs of the LVL elements remain fully visible and are part of the building’s aesthetics. The screed is biobased and consists of gravel-like granules in a cardboard honeycomb structure with gypsum fiberboards on top. The entire screed is dry and easily removable again. The PVC finishing floor is made of partly recycled PVC. The building has no window frames: the double-layer insulating glass is mounted directly on the steel structure. For that reason, the steel construction is provided with welded screw profiles. The steel builder had to comply with the very limited tolerances of the façade builder, which was no small task. The facade is largely transparent, which makes for strong sightlines and relations between the inner and outer world. Vertical slat strips can be opened for natural ventilation. The down-to-earth, modern building strikingly and interestingly contrasts with the historic existing buildings. This also renders it illustrative for the way cepezed approaches the combination of new and historic construction.

Climate
The entire building functions as one large fire compartment. As a result, little material was required for fire-resistant measures; only the stairwell has a fire-resistant partition. All climate control works on air. On each floor, air conditioners that also take care of heating are integrated in the ceiling. In addition, the building is equipped with a heat exchanger. Roller blinds provide sun and light protection.
Integral process
Construction took place in an extremely short period: just over half a year. With the positioning of the elevator shaft, the building even topped out in an hour after the works started. The complete structure of steel skeleton and wooden floors was put together in three weeks. This was possible, among other things, because of an integrated process with thoughtful preparation and close, integrated cooperation between the various cepezed disciplines; from the project developers to the architecture and interior designers and of course the implementation coordinators. With short communication lines, all specialists are housed under one roof, which has not only improved the efficiency of the process, but also the level of coordination and thus the quality. cepezedprojects developed, cepezed and cepezed interior designed and cepezedbouwteam coordinated the construction. There was a close collaboration between the designers and the construction coordinator throughout the complete process with key figures from the design also being part of the implementation team.

The cooperation with the external partners is also worth mentioning. With a lot of them, cepezed also often collaborates on other projects. As a result, all parties were already well attuned to each other. For example, the structural advice was provided by IMd and the advice in the fields of installations, building physics and fire safety was provided by Nelissen. The realization was tendered out to various parties such as Voortman, Metsä Wood, iFS, Kuijpers and Qbiq + Schelp Bouw & Interieur for respectively the steel construction, floors, facades, MEP/HAVAC and the fit-up package. This pragmatic approach meant that the implementing parties only had to concentrate on their own expertise. In terms of time, use of materials and financially, this has resulted in a high degree of efficiency.
Example at home
With circular projects such as the Temporary Courthouse in Amsterdam and restaurant The Green House in Utrecht, cepezed previously realized other projects completely designed for circularity. These garnered a lot of publicity and various prizes, such as the Amsterdam Architecture Prize and the public award of the Sustainable Building Awards. With Building Part d(emountable), cepezed now has a circular example of its own manufacture directly at home. Customers and partners only have to look out the window to see how cepezed shapes circularity.
Project Credits:
Project development: cepezedprojects, Delft
Interior design: cepezedinterieur, Delft
Structural engineering: IMd Raadgevende Ingenieurs, Rotterdam Consultant mechanical & electrical engineering, consultant building physics, sustainability, acoustics and fire safety Nelissen ingenieursbureau, Eindhoven construction coordination: cepezedbouwteam, Delft Contractor steel construction: Voortman Steel Construction, rijssen
contractor electrical and mechanical installations: Kuijpers Utiliteit Midden-Noord B.V, De Meern
Wood floring: Metsä Wood / De Groot Vroomshoop
Contractor glass facades: iFS Building Systems, Waddinxveen
Contractor roof: Roof Protection, Arkel
Stairs: EeStairs, Barneveld
Contractor ceilings and custom interior walls: Schelp Bouw & Interieur, Eersel
Wall systems: Qbiq, Alphen aan de Rijn
Pantries: AS Projectinrichters, Poeldijk
comments