
Text description provided by the architects
Beautiful long grey bricks clad the double-story extension to this property near the Chilterns in Seer Green. The extension forms a new volume externally while merging old and new spaces internally.

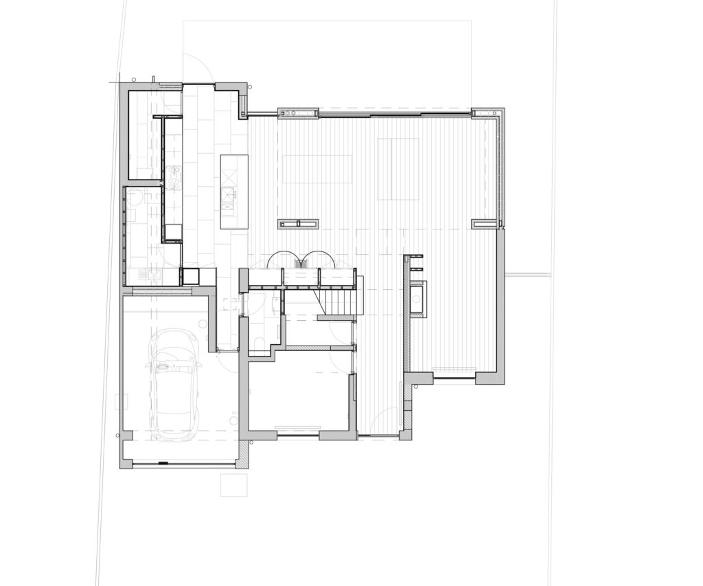
Approaching Long Brick House, you would not have the slightest idea that behind a standard door lies a home that beams with natural sunlight and clever design ideas. The existing dis-jointed house had endured multiple conversions, over time it had become a house full of small spaces and no cohesion. It lacked a key focus, a place where a family could spend time together. The house seemed to almost reject the beautiful garden. The easy solution was to knock down the house and rebuild it. The smart solution was to transform.
Our aim was to make sure the house addressed its local environment whilst achieving something very different and unique. The solution is a two-story box that sits on the back of the existing building with a 'canyon of light' separating old from new.



















comments