
Text description provided by the architects
This is a two storey extension and partial conversion of an existing two-storey 1960s constructed building at Longford Community School (now known as Rivers Academy).

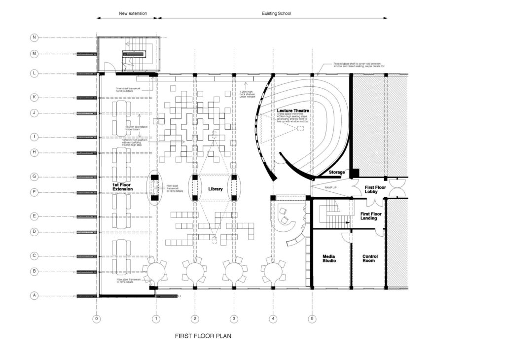
A total area of 750sq.m (a 200 sq.m extension and 550sq.m conversion of existing) houses two new classrooms and a Fitness Centre at ground level with a new Library/learning Centre at first floor.
The challenge here was how to successfully extend a nasty looking teaching block. We chose to build a vibrant colourful structure that straddles the end of the block almost as a kind of articulated bookend.

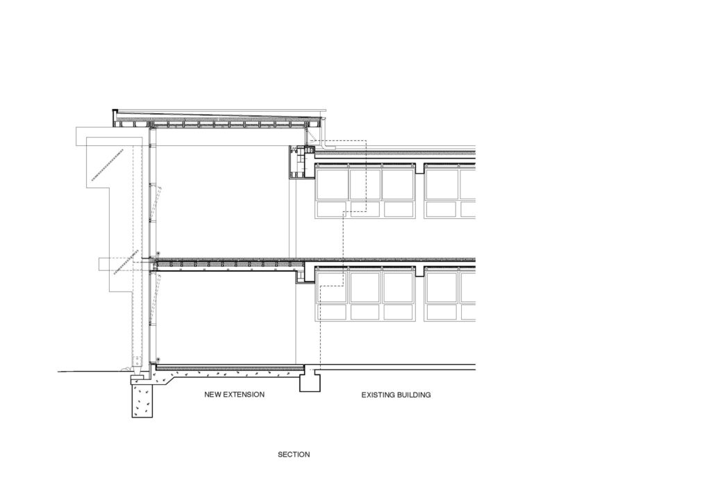
The two storey extension element uses bespoke designed colour-stained Finnish softwood laminated ‘fins’ that support both the first floor structure and the roof. Unusually for this material, the structure is completely external and exposed to the elements and after much research was pressure impregnated in order that it could perform to these conditions.
In between each fin are aluminium grating panels that provide solar control as well as structural stiffening to the external structure. The roof is clad with silver ‘Trespa’ panels and is designed to give the impression of floating/sliding across the exposed roof beams.

Internally, the library has been designed as an adaptable open plan area that can be used for different ways of teaching – there is raised area of carpet clad cubed modules for seating, bespoke designed tables and benches and an enclosed curved ‘arena’ space.
comments