
Text description provided by the architects
An extra room for a family growing up.
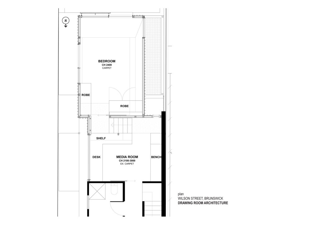
The clients have three teenagers and needed an extra bedroom, a study and more storage space. The new study serves as a secondary living area, a space to study or work, or simply to retreat to.

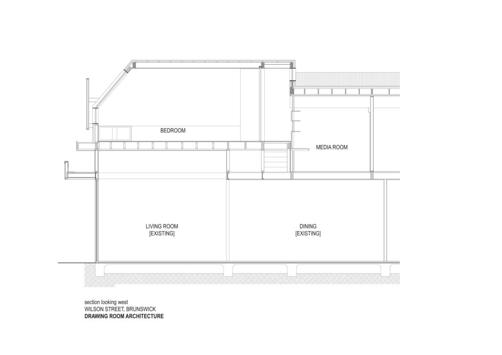
There was an existing roof lantern in the living area, it seemed counter-intuitive however this was the only place to put the extra bedroom on a narrow site with a heritage overlay. To keep the lantern and the wonderful light and height it provided to the living area, the extra bedroom now sits five steps higher than the adjoining study. This also allowed the new bedroom to feel a little more private and affords some spectacular views to the parkland in the distance. The room is shaped in response to the need to not overshadow the neighbours yard, but at the same time to allow light and views and as much storage as possible.

How does the project make the most of a small space and tight sight?
Using in built joinery allows for working surfaces, sitting nooks and storage cupboards and drawers all in one. Custom made, inbuilt furniture can respond to the constraints of the space in an efficient and playful way.
comments