
Text description provided by the architects
The Bold roof profile of Avocado Acres (Aa) House personifies the co-design collaboration with Architect, Lloyd Russell and Surfside Projects to inject a fun dose of creativity + Mod Green Architecture into this coastal infill project. Aesthetic cues originated from the historical LA’s Case Study Houses and Eichler’s MCM gems. However, this new residence is all about addressing the conditions we face now by incorporating sustainable materials, energy efficiencies and environmental sensibilities.

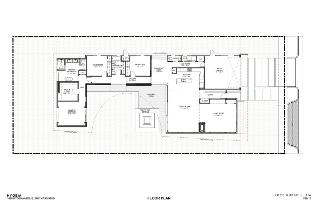
A sloping curved shed roof unifies the three pavilions that define the U-shape plan and courtyard space. Throughout the interior a constant engagement to the outdoors gives the home a grandeur that belies the home's small footprint. It ‘s single level living spaces, privacy from the street and functional layout for the inhabitants is the soul of our design strategy.

Straight lines with an angular street front geometry sits in stark contrast to the unique curvilinear roof profile. A simple color palette of the open interior space complements the muscular concrete walls and extensive use of natural wood tones on the vaulted ceiling, flooring and cabinetry. Floor plan consists of three defined areas joined in a U shape where each volume programs directly to the outdoor courtyard. 9' tall sliding glass walls vanish into wall pockets and clerestory glazing that entirely wraps above the main living space provides plenty of natural light.
A third party, non-biased rating system ( California GreenPoint Rated ) was used to confirm and to certify our best sustainable building practices.
What was the brief?
To re-develop a Coastal infill lot into a single level California lifestyle Home. Privacy, organic materials, flexible living spaces and allowing outdoor accessibility were our initial design objectives.
What were the key challenges?
The Roof design and build was not easy. When Lloyd Russell, Architect, took the original design concept and presented a curvilinear roof it was an instant decision to press the go button. Impressed how well a different shape worked with rest of the home's aesthetics, the Roof ended up generating some mental gymnastics during both design and constructions phases. Curve details just seem to inherently create special hurdles. Especially, when combined with a roof profile that slopes in two different direction and angles.




























comments