
Théâtre du Maillon, originally known as the Maillon Cultural Centre, opened in 1978 in Hautepierre with the goal of spreading culture to the outlying neighbourhoods. Since its founding, its purpose has been to force the theatre outside the box and to break down the often-elitist posturing of the theatre world. ‘Maillon’ in French means ‘link’ and Germain Muller liked to remind people that the centre is the link in a cultural chain at the city level.

In 1999, for a variety of reasons, the theatre moved into a hangar at the Wacken exhibition centre that had served since September 1932 to host the European expo. It was a very simple place that imposed a set of strict terms of use when mounting productions. That turned out to be a stroke of luck because occupying this temporary site resulted in a very specific kind of programming and an identity at the crossroads of theatre arts and contemporary modes of expression. The constraints became an asset. Under its various leaders, Théâtre du Maillon gained a reputation as a firmly contemporary and multidisciplinary theatre, such that it has become a linchpin of European artistic creation.
Today, Théâtre du Maillon plays an active role in expanding the reach of artists and their works through European networks. It also stages French premières, assists theatre companies by hosting research and creation residencies and supports the work of emerging or established artists through co- productions.
For example, beyond the ties forged with many European partners at various locations, the Maillon formed a new network with which it will launch the Moving Borders project in 2019-2021, with financial backing from the Creative Europe fund.
Born of a collaboration with different European partners, Moving Borders will work with an artist-curator to develop artistic methods and formats that make it possible to spark encounters between people from different places and different social settings. It also explores the notion of ‘borders’.

The new Théâtre du Maillon
To reassert the founding principles of the Maillon’s artistic identity and to enshrine an experimental approach to research and artistic creation, as well as to showcase its commitment to fostering direct, lively relations between artists and audiences, the plans for the new theatre aim to build more than a mere place: a true artistic machine at the intersection of theatre and the making of theatre.
In lieu of the traditional proscenium-style theatre (lobby, auditorium, backstage), the plans focus on the idea of a space essentially comprised of open areas that, like a city, begin by defining traffic patterns. The new Théâtre du Maillon is an extension of the thought process begun in 1927 by Walter Gropius; it attempts to erase or redefine the different lines of demarcation: between the theatre and the city, between outside and inside, between the front and back of the house, between the artists and the audience and, of course, between the different disciplines.
The new Théâtre du Maillon is one of the first theatres built for the purpose of offering a stage adapted to contemporary theatre, to its unpredictability and to its capacity/need to use all kinds of spaces.
This goal is translated spatially into foundational principles: the first is to design more empty space and more volume in the belief that emptiness is the space of possibility; the second is to set up a hyper-flexible building with no boundaries between what is theatrical and what is not with the goal of providing a resource that can accommodate the most unprecedented and stimulating scenarios.
Thus, a single façade defines all the parts of the edifice and multiple entrances. The mobile walls enable the spaces to be reconfigured.
The outdoor areas can host performances and are directly connected to the stages. From a set design point of view, the ‘theatre is everywhere’ and the space is not very demanding. It can be easily appropriated, facilitating cross-pollination, creation and experimentation.

The theatre and the city
The Maillon has grown with the evolution of Strasbourg: from the development of new outlying districts in the 1970s to the revitalisation of a new urban centre at Wacken and the concurrent establishment of an urban continuity with its neighbours across the Rhine.
On a city scale, the new Théâtre du Maillon aligns with the urban planning vision and stands alongside major components such as the European Parliament, the Maison de la Région resource centre and the future exhibition park. Optimising the dimensions within the plot, the structure enhances the streetscape along Avenue Schutzenberger, forms an angle at Place Adrien Zeller and stands as an urban beacon when seen from Rue Jean Wenger Valentin.
Spaces
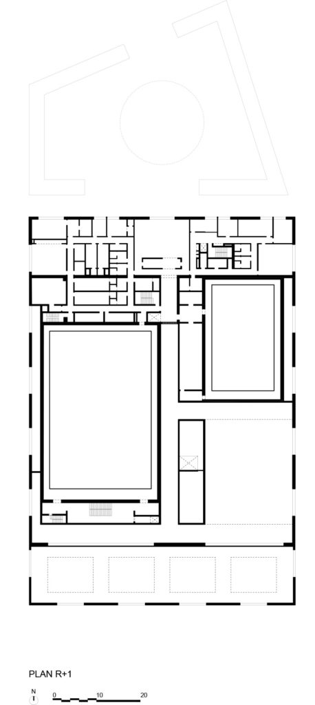
Théâtre du Maillon consists of two auditoriums, a hospitality area, a logistics area, an administrative area, an ‘artists’ area, a backstage logistics area and two courtyards: a logistics courtyard and an entrance courtyard. The paths of movement play a major role: they define the spaces without preventing them from evolving. The demands of set designs push toward even more flexibility, resulting in spaces with high potential for use.

For example, the delivery courtyard turns into a stage, the lobby and the courtyards become exhibition spaces, the small auditorium can be joined to the hospitality area, and so on. Each space becomes a discovery, each detail an invention.
The changes are visible from the urban sphere thanks to multiple connections between inside and outside, entrance and exit, emptiness and fullness, open and closed, day and night.
Taken as a whole, the place is unrestricted in its functions and movements and open to mixed and continuous uses, but it also offers closed, isolated spaces to allow for simultaneous activities without disturbance or disruption.

Entrance hall/bar
As the first space in which the artistic endeavour becomes palpable, the entrance hall embodies the theatre itself with its ability to harbour a large array of activities: performance, exhibitions, lectures, discussions, plays, etc. By dint of its reception function, it is the place for all interaction between audiences and artists. It is an especially flexible raw space. The walls can easily disappear to expand the space or to envelop attendees within a more intimate area. Its generous height makes it possible to install netting (outside the field of vision) to hang large visual installations, screens, lighting or audio-visual equipment. The rotating partition system plays with the space and how it is perceived to introduce the spectator into the world of the Maillon. In that way, the entrance hall literally serves as the ‘overture’ to the theatre.
The hospitality area, however, is not limited to the entrance hall. To reinforce the extreme flexibility sought in the project, this space was extended by the creation of two outdoor courtyards that open onto the entrance hall and the lobby of the large auditorium.

The street
Théâtre du Maillon is organised around a centre street that is a travel path, technical space, private space and public space. Its expansive dimensions and the placement of the various areas also enable it to become a space for theatrical expression, exhibitions or other performances. When the entrance hall is used as a performance space, the bar (two- sided) opens onto the street and the lobby becomes the entrance hall.
Large auditorium
The large auditorium measures 40m long by 26m wide and has a capacity of 714 seats. It has a catwalk along the edge and a ceiling beam spanning the entire stage with a height of 13m under the grid.

In addition to the 578 seats arranged on telescopic bleachers, the creation of 136 seats in recessed tiers makes it possible to adjust the audience capacity, increase the depth of the set or to bring the viewer closer to the action. It has its own lobby, which connects directly to the hospitality area.
Both auditoriums function as black box theatres. Sets may be designed from any point on any of the six inner façades (one, two, three or four surfaces).
Small auditorium
Separated from the large auditorium by the main travel path, the small auditorium measures 20m by 22.5m and has 254 seats in various configurations. Retractable, mobile blocks of tiered seating offer an array of configurations facing one, two, three or four ways.
The under-grid height of 10m and the numerous access points on the same level facilitate a variety of set-ups in both directions. Like any large auditorium, this second performance space has a dedicated lobby that connects directly to the hospitality area. Moving the mobile tiered seating from the small auditorium to the large auditorium or the hospitality area is feasible because the seating modules are modest in size and do not need to be broken down to be transferred between the spaces.
The artists’ lobby and studios
A hospitality area on the upper level allows for informal interaction between the performers and off-stage talent and helps to desegregate the space and promote the mingling of disciplines. But socialising among the artists is not limited to this spot: the oversized dimensions of the travel paths lend themselves to spontaneous encounters between artists, technicians and administrative staff. This expansiveness also enables it to blend into the project to connect more private spaces.

The warm-up rooms can also be used for lectures, meetings, workshops and, more broadly, the organisation of pedagogical activities is baked into the project.
Backstage logistics
Backstage logistics includes the production and storage of small set design components. It is divided into two entities: one on the ground floor that connects directly to the auditoriums and the other on the upper floor, near the performers. The ceiling height in the studios is 6.5m, which enhances their flexibility and lets in natural light. The sewing studio and costume storage area open directly onto the performers’ dressing rooms and are immediately adjacent to the artist hospitality area.
The artists’ backstage area includes all the preparation spaces for the artists and performances. It is located on the upper level, between the artist hospitality area and the two auditoriums. All the dressing rooms have natural light.

Offices
Located on the upper level, the offices form a cohesive whole that enables the various Maillon users to regularly run into one another and to share casual moments together. The offices are accessed via a dedicated entrance. They are grouped by entity and all have natural light in the morning.

Courtyards
The entrance courtyard is an extension of the indoor areas; it is a semi-open space sheltered from the wind. The glass façades are suspended in such a way that the lower portion can be opened or slid into the walls for a totally open space.
The backstage courtyard is delineated by a wall that makes it possible to store the tiered seating when the space is used as an amphitheatre.
Project Details:
Program: Construction du Nouveau Théâtre de Strasbourg, Maillon - Scène Européenne
Client: Ville de Strasbourg
Cost: 20 M. € HT
Start of Construction: Octobre 2017
Completed: Novembre 2019







































comments