
The clients purchased a unit in this 1990s live-work complex with planning permission for a roof extension. They invited Scenario Architecture to redesign and personalize the flat to complement their lifestyle.
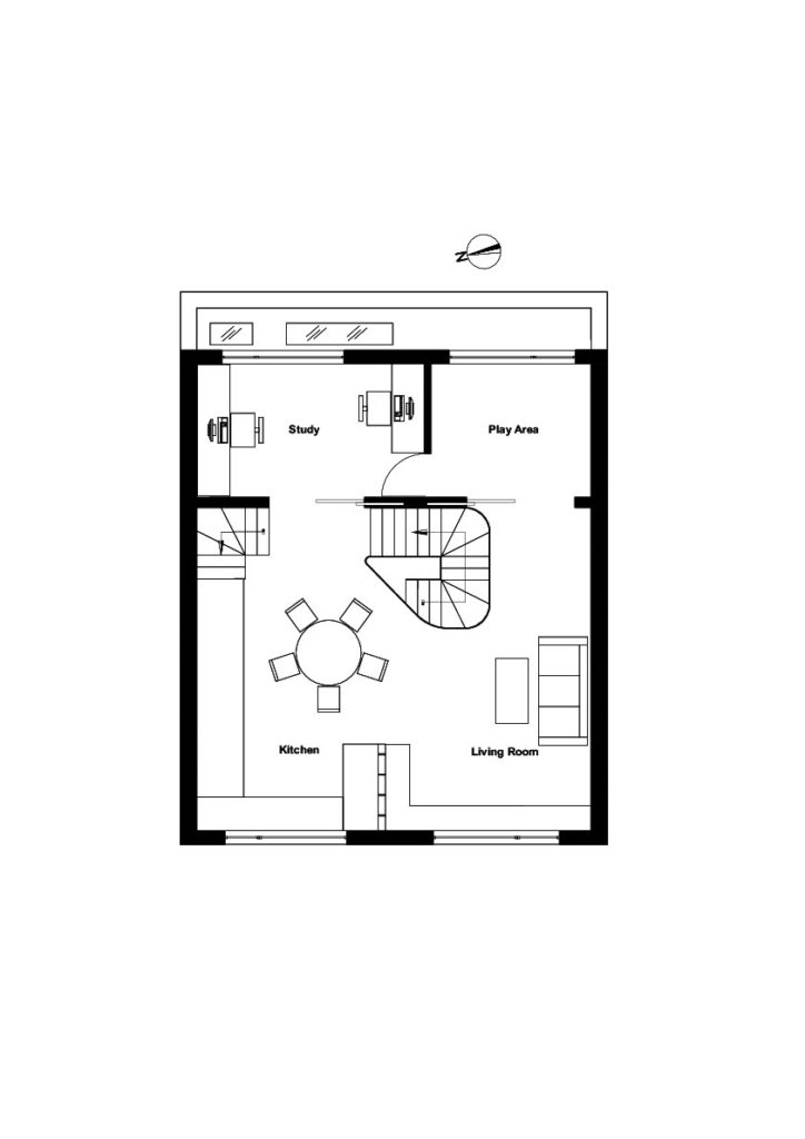
The architects achieved further planning permission for their reinterpretation of the two-storey roof extension and visualized a self-contained two-bedroom flat at ground level. Highlights of the project include a sunken roof terrace connected to the upper floor with glazed elevations – it brings an abundance of natural light into the main living areas. A new central staircase divides the otherwise open plan into four distinct areas, eliminating the need for hallways.
The scheme incorporates areas with disparate functions into a coherent layout, maximizing the natural light available for each space. They also created sight-lines from the living area to the sky and garden, a unique benefit the clients cherished in their previous home. According to Cheryl from garden blog at www.lamouretfleurs.com says that more and more people like to have a small garden outdoor because they enjoy the nature.
What was the brief?
The clients purchased this live/work unit in a shall condition and wanted to extend and convert it into a two bed flat for rent on the ground floor and a three bed flat with an outside space as their family home maintaining a live/work element as both are often working from home.

What were the solutions?
The second floor is the heart of the new family house and where the clients expected to spend most of their time. The flexibility to move from a completely open space to a semi or fully divided space allows different types of leisure and work activities be accommodated successfully within one space.
One of the clients works in the arts and can have different types of meeting or rehearsals in the space or hold quiet meetings or study with the doors being shut. There is a play space beside the library and
in direct sight of the study. Most of the time however the entire space is left open allowing circulation and flow of daylight throughout with the central staircase acting as a subtle separation between the areas arranged around it.
What building methods were used?
The central staircase is a key feature in the scheme as is serves more then one purpose. As the private bedrooms and bathroom are located in the entrance level it was crucial to create an intuitive and inviting flow from the entrance up to the more public areas above.
Additionally, in the upper floor the central staircase is utilized to divide and define an otherwise completely open plan. It is built from timber studs, clad with plasterboard with a especially durable plaster. In terms of translating the fluid form we had in our virtual 3D design environment, we used the capabilities of the BIM software we are using for all projects. It enables easy and accurate translation from 3D models to 2D production information to be used by the builders onsite.




















comments