
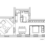
Apartment in the 19th century townhouse in Ljubljana, Slovenia is a place of opposites: it is both warm and cold, both soft and orthogonal. It is equally open and closed against its surroundings and both in contact and in conflict with it's past. It is an interpolation of two different but visually connected ambients with contrasting identities and materialities: the loft and the salon.

Living room, furbished in textured and warm materials, reinterprets an Art Nouveau salon. Its layered materiality – ranging from an open fireplace in onyx stone to vintage hardwood floors – is reflected in the round ceiling mirror that acts as an illusionist fresco. The room is ambient lit: apart from the contemporary chandelier, whose light is reflected in the ceiling mirror and polished stone, the fireplace itself, with light fixtures behind the thin onyx stone, can become a source of light.
The loft, on the other hand, is defined by a grid of aluminum beams, suspended from the ceiling. The grid structures the space – kitchen, bedroom, bathroom and wardrobe volumes are defined by sliding doors, attached to the structural beams. By opening the doors the living space can be extended beyond the dining room into a bedroom and a shower, thus creating functionally diverse ambients that range from straight-forward to complex.
The loft is lit by a system of reflectors, thoughtfully suspended from the grid. The materials, used in this section of the apartment – aluminum, plexi glass, textile, concrete and mirrors – further add to the industrial feeling.

Apartment's layout allows for a sort of voyeurism: the position on the sofa offers views to the city square, to the fireplace, to the dining table and inside the bedroom, and if we look upwards, even a view upon ourselves. Similarly, sitting at the dining table we can observe the kitchen, bedroom and even the shower, which provocatively borders on the living area.
Closing the sliding doors can create neat and functionally separated spaces. Opening them, on the other hand, can offer us layers of visual experiences that vary from industrial to vintage, from etheric to earthly, from the physical space to its reflection.
Location: Ljubljana, Slovenia
Area: 91.28 sqm
Materials: aluminum, plexi and textile panels, concrete flooring, mirror surfaces, onyx fireplace
Architects: SADAR+VUGA (Jurij Sadar, Boštjan Vuga, Tina Hočevar)
Photographs: Miran Kambič
comments