
Studio 163 have added a window seat and subterranean wine cellar to a family home in London.
E + H wanted to open up their kitchen and dining space to the garden and maximise light whilst minimising the changes to their existing façade.

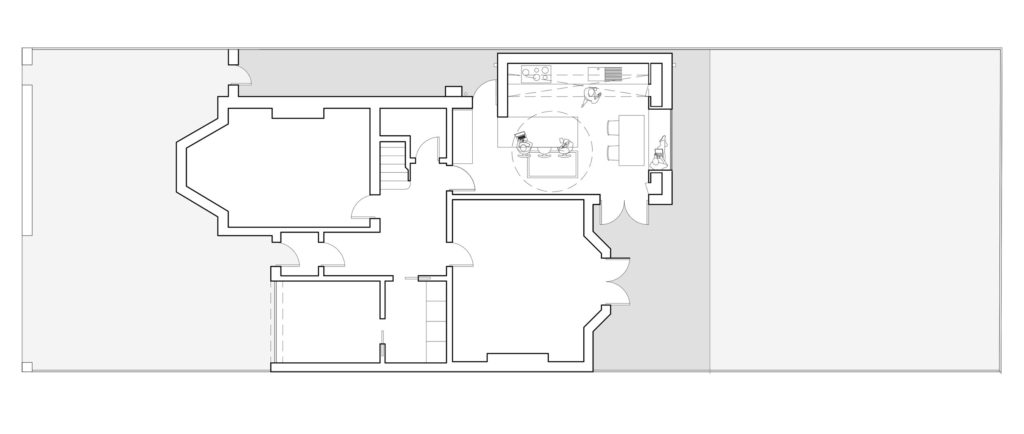
The main issue was the existing narrow galley kitchen which had little natural light. The aim was to create a subtle intervention that would enhance their way of living.
The proposed modest side extension as well as an opening in the rear façade allows for a widening of the plan and for a new space to be created which could be used in multiple ways. The main element of this project was to introduce a window nook which acts as a reading space, a seating area around the breakfast table and as storage for the two children’s activities.

The brief included a subterranean wine cellar which required significant excavation works and the pouring of over three tonnes of cement.
The space was designed with a restrained palette of materials in mind, echoing the relaxed feeling of the garden, using highly skilled joiners to create feature pieces and using a subtle terrazzo for the continuous backsplash to provide a playful element to the kitchen.
Externally, the facade respects what is already there, a context of inter-war Art Deco housing typically finished in white render.





















comments